CO6 1AA - 3 bedroom detached house for sale in Greenfield Drive, Colc…

View on Property Piper

3 bedroom detached house for sale in Greenfield Drive, Colchester, CO6

Summary - 6 GREENFIELD DRIVE GREAT TEY COLCHESTER CO6 1AA

3 bed 1 bath Detached

**Standout Features:**
- Spacious three-bedroom detached family home in the picturesque village of Great Tey
- Potential for creating a fourth bedroom or annex with independent access
- Delightful rear garden with generous sunlight, perfect for relaxation
- Well-appointed kitchen, garden room/snug, and utility room offer versatile living spaces
- Single garage with internal access and a driveway for convenient parking
- Low crime rate in an affluent, friendly village community

**Potential Concerns:**
- Property requires some updating and renovation
- Cavity walls may lack insulation, which could impact energy efficiency
- Oil heating system that may require future attention

Nestled in the charming village of Great Tey, this generous three-bedroom detached home presents an exceptional opportunity for families and investors alike. The spacious layout boasts well-proportioned rooms, a bright garden room with dual patio doors that open onto a sunlit rear garden, and a large living area that makes it perfect for family living. The layout offers the unique potential to create a fourth bedroom or annex, enhancing versatility and value.

Enjoy the warmth of community life with local amenities including the historic Barnabas Church and welcoming Chequers Pub. Explore scenic country walks and partake in village events while benefiting from fast broadband and easy access to essential services just a short drive away. Commuters will appreciate proximity to Marks Tey station, connecting directly to London, while families will value the nearby Good-rated Church of England primary school.

With a little updating, this property can be transformed into your dream home in a tranquil village setting. Don't miss the chance to immerse yourself in the exceptional lifestyle Great Tey offers—this property is not likely to linger on the market!

Property Details

Image Descriptions

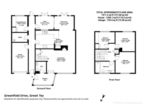
Floorplan Description

Rooms

Textual Property Features

Detected Visual Features

EPC Details

Nearby Schools

Nearest Bars And Restaurants

,,,,}

Nearest General Shops

,,}

Nearest Grocery shops

,,}

Nearest Supermarkets

,,}

Nearest Religious buildings

,,}

Nearest Medical buildings

,,,}

Nearest Leisure Facilities

,,,,}

Nearest Tourist attractions

,,}

Nearest Train stations

,,,,}

Nearest Bus stations and stops

,,,,}

Nearest Hotels

,,}

Tags

Local Market Stats

Meta

High Res Images

Compatible Images

Low res Images

Thumbnails

Raw Images

High Res Floorplan Images

Compatible Floorplan Images

Low res Floorplan Images

FloorplanImages Thumbnail

Raw Floorplan Images