Large plot, parking and garage with strong extension potential near town centre.
- Recently renovated throughout with high quality fit and finish
- Generous front and rear gardens with private patio and lawn
- Off-street parking to front and side; garage via private lane
- Large detached garage/workshop plus substantial timber outbuilding
- Ample space to side for extension subject to planning permission
- Single shower room upstairs; newly installed downstairs WC only
- Double glazing fitted before 2002; may not meet modern standards
- Cavity walls as built; insulation currently assumed absent
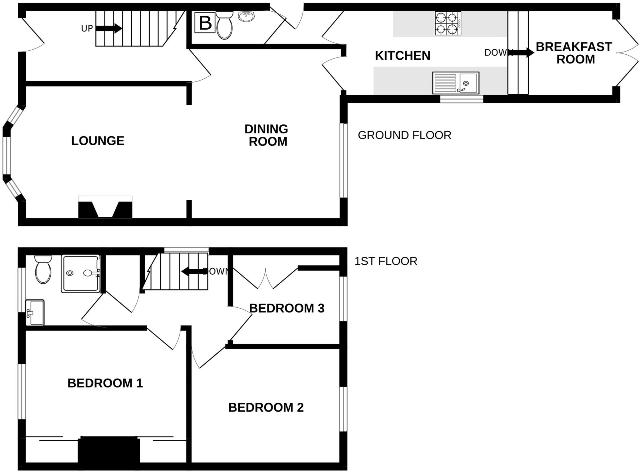
Set on a generous plot in a sought-after Penrith neighbourhood, this end-terrace three-bedroom house has been renovated to a high standard and offers comfortable, flexible family living. Ground-floor flow includes a dining room open to the sitting room, a kitchen with adjacent breakfast room and French doors leading to the rear garden. A newly fitted downstairs WC adds practical convenience.
Upstairs there are three bedrooms (two with built-in storage), a modern shower room and access to a boarded loft. Outside, lawns and a private patio provide pleasant outdoor space, while off-street parking to the front and side and a large detached garage/workshop with vehicle access from a private lane add strong practical value.
The plot offers clear potential for an extension to the side, subject to planning permission, making this an attractive purchase for growing families wanting to add space. The property is Freehold, in a very affluent area with low crime, excellent mobile signal and fast broadband — convenient for commuting and home working.
Buyers should note a few factual points: the house dates from the 1930s–1940s and has cavity walls (insulation assumed absent), double glazing installed before 2002 and mains gas central heating. Services, boiler and radiators have not been tested, so buyers should allow for standard pre-purchase surveys. Overall, this well-presented home combines period character, recent renovation and extension potential in a quiet, accessible location.
3 bedroom semi-detached house for sale in Raiselands Croft, Penrith, CA11 — £210,000 • 3 bed • 1 bath • 1044 ft²
3 bedroom semi-detached house for sale in Croft Avenue, Penrith, CA11 — £280,000 • 3 bed • 1 bath • 1012 ft²
3 bedroom terraced house for sale in Musgrave Street, Penrith, CA11 — £175,000 • 3 bed • 1 bath • 1077 ft²
3 bedroom house for sale in Huntley Avenue, Penrith, CA11 — £275,000 • 3 bed • 1 bath • 989 ft²
3 bedroom detached house for sale in Laburnum Way, Penrith, CA11 — £315,000 • 3 bed • 1 bath • 1108 ft²
3 bedroom semi-detached house for sale in Brentfield Way, Penrith, CA11 — £280,000 • 3 bed • 1 bath • 1044 ft²










































































































