Chain-free second-floor flat near Northern Line with balcony and gated parking.
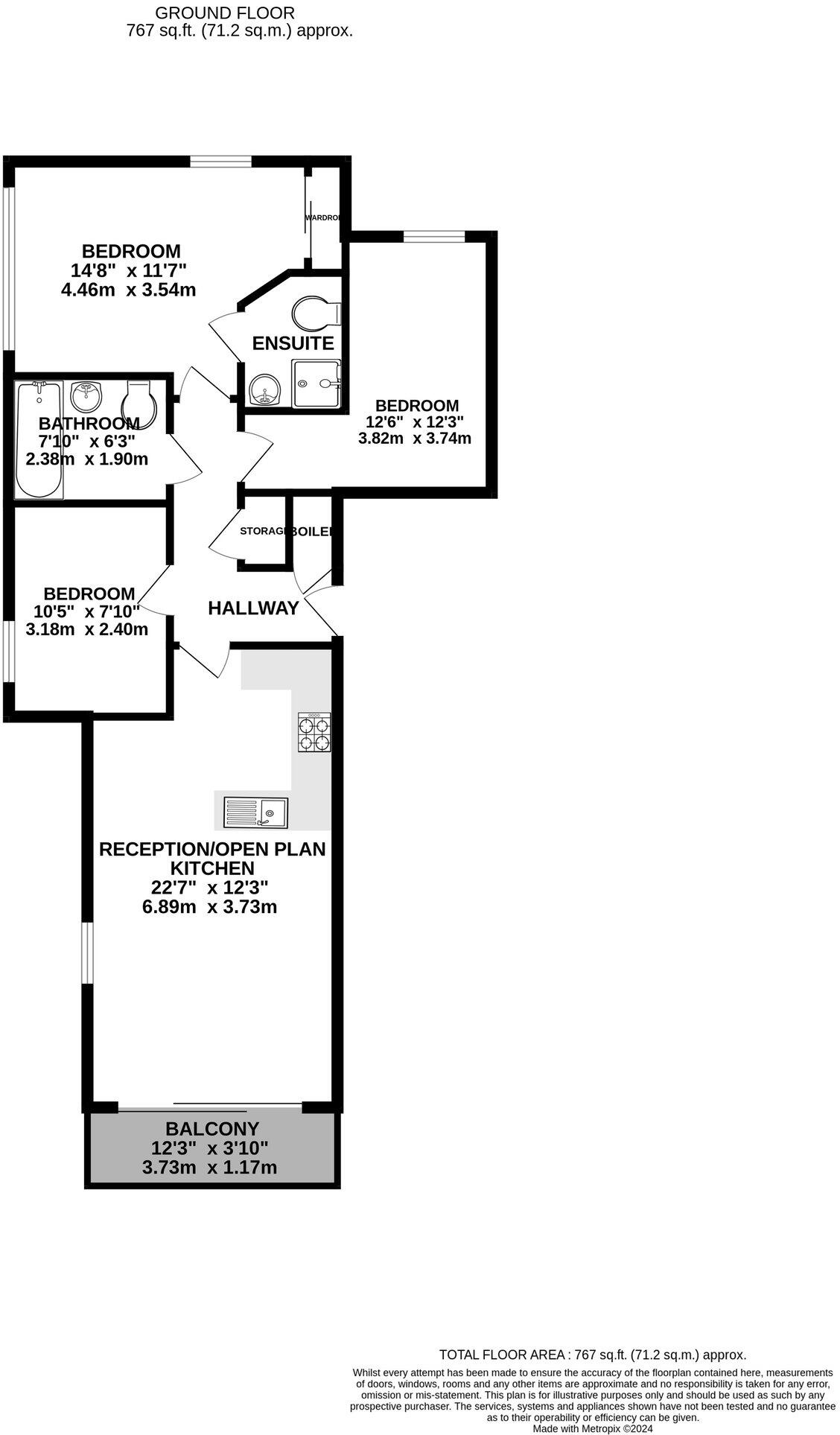
Chain-free second-floor flat with three double bedrooms
Set on the second floor, this three-double-bedroom flat offers practical family living with a modern open-plan kitchen/living area and private balcony. The accommodation is bright, with contemporary fixtures, an en-suite to the master and a family bathroom — well suited to young families or sharers who need straightforward, low-maintenance space.
Practical benefits include an allocated gated underground car parking space with electric charging capability, communal gardens, fast broadband and excellent mobile signal. The location is highly accessible: Burnt Oak and Edgware Northern Line stations are within walking distance and local shops, banks and schools are nearby.
This property is sold chain free and currently let at £1,800 pcm — attractive for a buy-to-let purchaser or for someone buying with sitting tenants. It is leasehold; buyers should check the remaining lease term, service charges and ground rent. EPC C (78) and double glazing are positive energy indicators, though the glazing install date is unknown.
Be aware the building is part of a broadly deprived local area, which can affect long-term capital growth and rental demand. The flat is of modest overall size (approximately 767 sq ft) and dates from c.1996–2002, so cosmetic updating may be desired to match personal taste. Council Tax Band D applies.
3 bedroom ground floor flat for sale in Edgware Court, Edgware, Greater London. HA8 7NP, HA8 — £350,000 • 3 bed • 1 bath • 860 ft²
2 bedroom flat for sale in Orange Hill Road, Edgware, HA8 — £300,000 • 2 bed • 1 bath • 603 ft²
2 bedroom flat for sale in Scott Road, HA8 — £299,995 • 2 bed • 2 bath • 670 ft²
2 bedroom apartment for sale in Scott Road, Edgware, HA8 — £290,000 • 2 bed • 1 bath • 572 ft²
2 bedroom flat for sale in Lark Court, Lanacre Avenue, Colindale, NW9 — £350,000 • 2 bed • 2 bath • 593 ft²
3 bedroom flat for sale in Sunningdale Lodge, Stonegrove, Edgware HA8 — £700,000 • 3 bed • 2 bath • 1296 ft²


































