Spacious character property with large garden and garage near village amenities.
Four bedroom detached period house, 1,791 sq ft
Large terraced rear garden with greenhouse and vegetable patch
Garage and private drive with rear lane access
Grand entrance hall and 23 ft lounge with character features
Re-wired in 2012; new gas boiler c.2023 (British Gas warranty)
EPC D and Council Tax Band H — higher running costs
Stone walls likely without modern insulation; consider upgrade
Rear garden overgrown; requires landscaping and maintenance
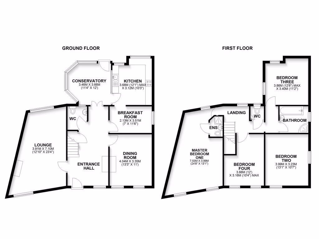
This distinctive four-bedroom detached period house, originally built in 1790 and converted from three cottages, offers generous family living across 1,791 sq ft in the heart of Dinas Powys village. The house combines original character—exposed beams, fireplaces and high rooms—with practical modern upgrades including a full re-wire (2012), replacement double glazing and a recently fitted gas boiler (c.2023). The layout centres on a grand reception hall, large 23 ft lounge, formal dining room, fitted kitchen, conservatory and two bathrooms (one ensuite).
Outside there are sizeable terraced gardens with private, secluded sections, a greenhouse and vegetable patch, plus a large garage and private drive. The location is highly convenient for village amenities, local clubs, primary school and rail links, making this a comfortable home for families who want space, character and village living.
Buyers should note some material points: the property has an EPC rating of D and sits in Council Tax Band H (very expensive), and the external stone walls are understood to be without modern insulation. The rear garden is currently overgrown and will require landscaping and maintenance. The main roof dates from around 1995 and should be considered when budgeting for long-term upkeep.
In short, this is a rare, characterful family home with significant living space and a private garden, improved in key service areas but with predictable period-home maintenance and running-cost considerations. A viewing will best show its scale and potential.
3 bedroom semi-detached house for sale in Heol-y-Cawl, Dinas Powys, Vale Of Glamorgan, CF64 — £499,950 • 3 bed • 2 bath • 1399 ft²
3 bedroom detached house for sale in Heol-y-Cawl, Dinas Powys, CF64 4AH, CF64 — £450,000 • 3 bed • 1 bath • 938 ft²
4 bedroom semi-detached house for sale in Greenfield Avenue, Dinas Powys, CF64 — £575,000 • 4 bed • 1 bath • 1206 ft²
5 bedroom semi-detached house for sale in Cardiff Road, Dinas Powys, CF64 — £650,000 • 5 bed • 2 bath • 2016 ft²
5 bedroom detached house for sale in Lettons Way, Dinas Powys, CF64 — £635,000 • 5 bed • 1 bath • 1798 ft²
3 bedroom semi-detached house for sale in Highwalls Road, Dinas Powys, CF64 — £595,000 • 3 bed • 1 bath • 1217 ft²






















































































































