Chain-free Victorian end-terrace with garages and modern boiler — ready for family life..
Chain free three-bedroom Victorian end-terrace
Set on the edge of the North Pennines National Landscape in the small village of Frosterley, this chain-free end-terrace offers practical family living with clear scope to personalise. Recent upgrades include new carpets, uPVC windows and doors, and a gas combi boiler fitted in 2024, so the home is warm and largely low-maintenance from a services perspective.
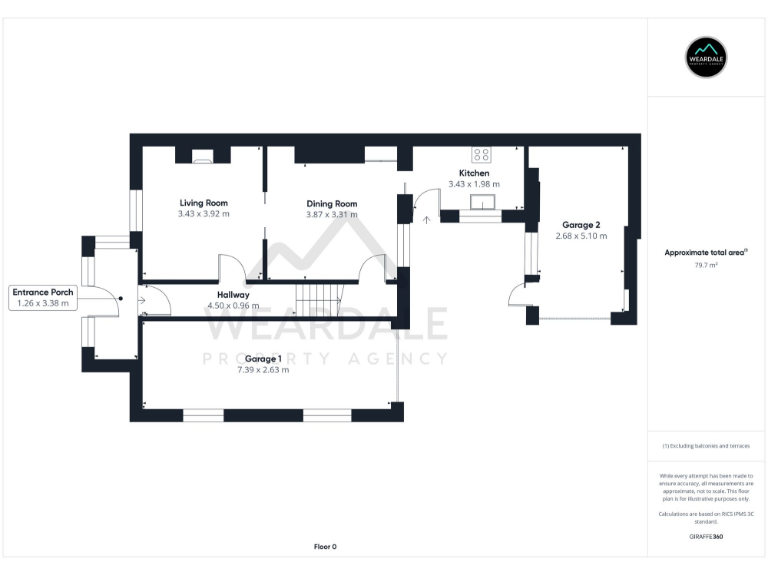
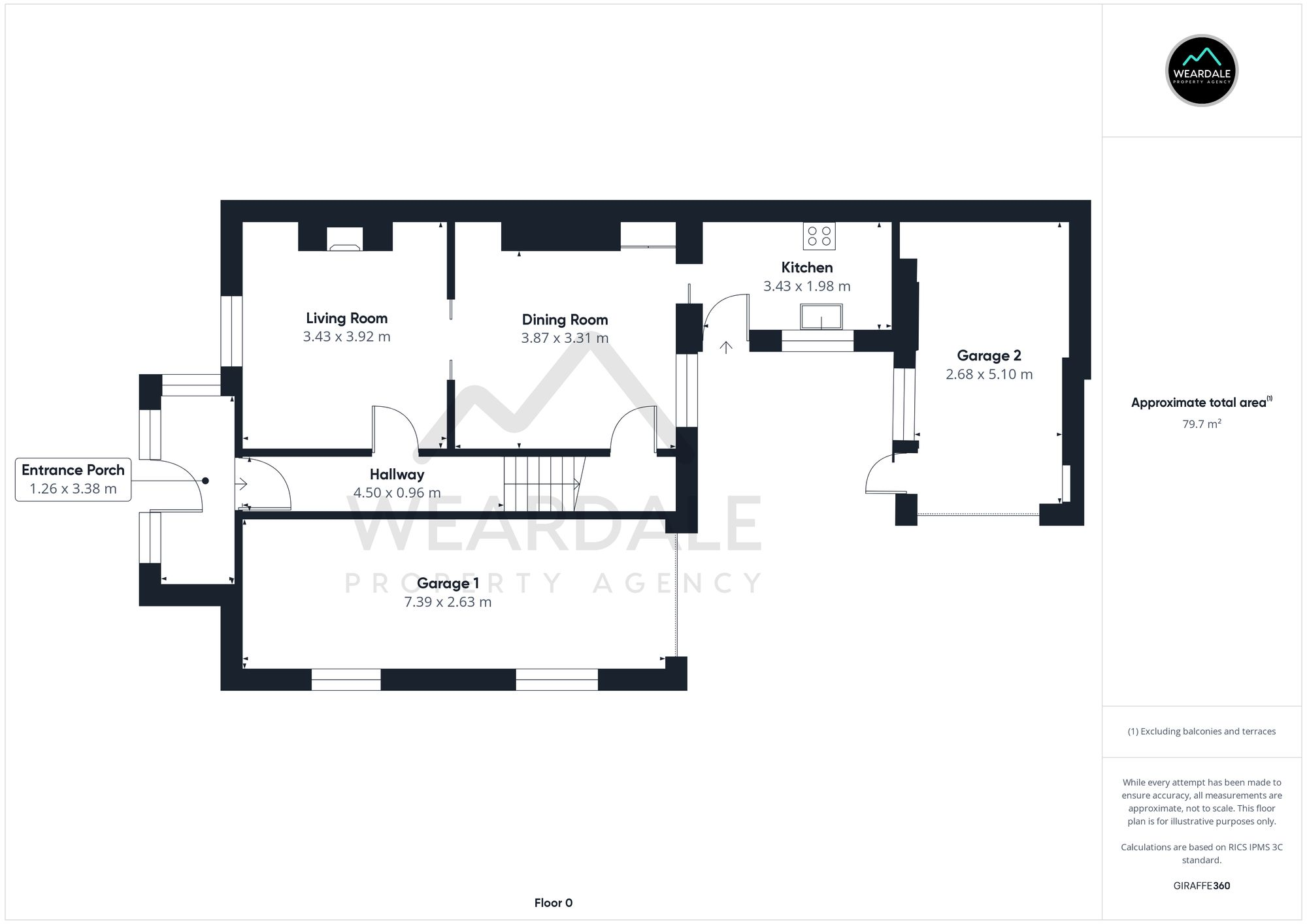
The ground floor provides an entrance porch, hallway, open-plan living and dining room and a kitchen with rear yard access. Upstairs are three double bedrooms plus a dressing room and a single family bathroom. The layout suits a growing family looking for extra bedroom space or buyers who want a comfortable home with simple, practical rooms and high ceilings that retain period character.
Exterior space and parking are strong practical benefits: two garages plus off-road parking immediately in front of the property provide space for up to three vehicles and storage. The front garden is east-facing with a lawn and planted borders; the rear yard is small and enclosed, offering privacy but limited outdoor entertaining space.
Buyers should note the property has an EPC rating of D and a single family bathroom, and while many services have been modernised, some rooms and finishes would benefit from further updating to fully realise value. Broadband and mobile signals are average due to the rural location. Nearby primary and secondary schools receive good to outstanding Ofsted ratings, and local community amenities serve village life well.
3 bedroom semi-detached house for sale in The Green, Frosterley, DL13 — £168,750 • 3 bed • 1 bath • 1284 ft²
2 bedroom end of terrace house for sale in Belle Vue, Frosterley, Weardale, DL13 — £180,000 • 2 bed • 1 bath • 1077 ft²
3 bedroom end of terrace house for sale in Broadwood View, Frosterley, Weardale, DL13 — £135,000 • 3 bed • 2 bath • 808 ft²
3 bedroom terraced house for sale in Paragon Street, Stanhope, DL13 — £175,000 • 3 bed • 1 bath • 1366 ft²
3 bedroom end of terrace house for sale in Hargill Road, Howden Le Wear, Crook, DL15 — £135,000 • 3 bed • 1 bath • 986 ft²
3 bedroom terraced house for sale in Myrtle Grove, Roddymoor, Crook, DL15 — £75,000 • 3 bed • 1 bath • 1360 ft²






















































































































































