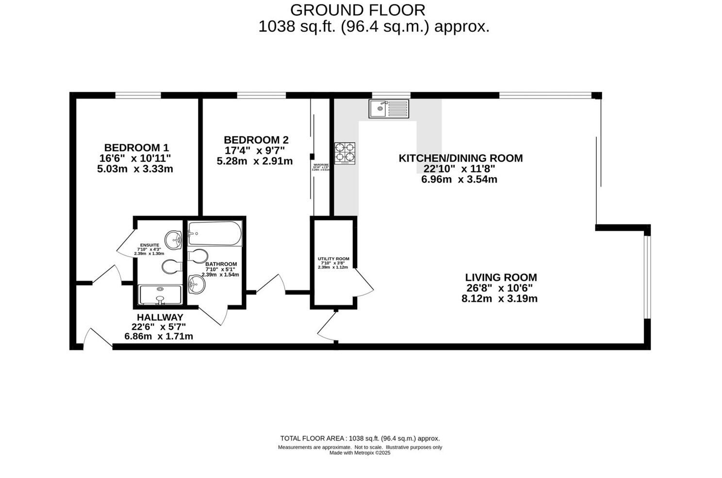
**Standout Features:**
- Spacious ground floor apartment with 1,038 sq ft of living space.
- Modern open-plan living/dining kitchen and two good-sized double bedrooms.
- Two stylish bathrooms including an en-suite.
- Light and airy ambiance with floor-to-ceiling windows.
- Secure underground parking and a separate storage room.
- Access to communal gardens and a garden terrace.
- Located near Didsbury Village with excellent transport links and local amenities.
- Leasehold tenure with no chain, allowing for a quick move-in.
This beautifully presented ground floor apartment offers a fantastic opportunity for families, professionals, and first-time buyers seeking a blend of comfort and modern living. Enjoy the convenience of secure underground parking and easy access to well-maintained communal gardens, perfect for relaxation or entertaining. Inside, you’ll find a welcoming hallway leading to a bright and spacious open-plan living area, designed for both relaxation and entertaining. You'll love the kitchen equipped with integrated appliances, while the two large double bedrooms ensure ample space for everyone, with the primary bedroom featuring an en-suite for added privacy.
Strategically located just moments from Didsbury Village, you'll benefit from a vibrant local community, excellent schools, and a range of amenities including shops, cafes, and transport options. Don't miss out on this exceptional opportunity to secure a modern apartment in a desirable location—schedule your viewing today and envision your new life in this charming haven!
2 bedroom flat for sale in Philip Godlee Lodge, Wilmslow Road, Didsbury, Manchester, M20 — £400,000 • 2 bed • 2 bath • 927 ft²
2 bedroom apartment for sale in Tudor House, 8 Olive Shapley Avenue, Didsbury Village, M20 — £275,000 • 2 bed • 2 bath • 845 ft²
2 bedroom apartment for sale in Larke Rise, Mersey Road, Didsbury , M20 — £340,000 • 2 bed • 2 bath • 981 ft²
2 bedroom apartment for sale in Lancaster Road, Didsbury, M20 — £315,000 • 2 bed • 2 bath • 668 ft²
2 bedroom apartment for sale in 117 Nell Lane, Manchester, M20 — £245,000 • 2 bed • 2 bath • 760 ft²
2 bedroom apartment for sale in Palatine Road, West Didsbury, M20 — £225,000 • 2 bed • 1 bath • 627 ft²










































































