Turnkey three-bed with expansive sun terrace and secure underground parking.
Three bedrooms, two stylish bathrooms including luxury principal en suite
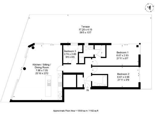
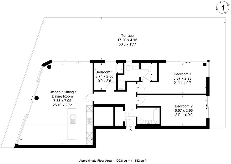
Set just moments from Branksome Beach, this three-bedroom second-floor apartment delivers a genuine coastal lifestyle with modern, turnkey presentation. The open-plan kitchen/living/dining room is the social heart, finished to a high standard and flowing through full‑height doors onto a vast private sun terrace accessed from every principal room — ideal for alfresco entertaining and year-round sea breezes.
The principal bedroom benefits from a dressing area and luxury en suite, while two further bedrooms share a contemporary second bathroom. Practical features include secure underground parking with a personal lockable store, coded lift access, integrated alarm and Bluetooth audio, plus app-controlled underfloor heating driven by an air source heat pump for efficient electric heating.
Ownership is straightforward: share of freehold, long lease (circa 994 years) and no onward chain, making this a quick move-in option. Note the ongoing costs: an average service charge of about £2,507 and an expensive council tax band — important for monthly budgeting. Broadband speeds in the area are very slow, which may affect home working without alternative connectivity solutions.
This property will suit buyers seeking a high-spec seaside home with low immediate maintenance and strong lifestyle appeal. There is some scope for personalising interiors, but the apartment is offered in true turnkey condition, so buyers can move in and enjoy the terrace, beach access and nearby amenities straight away.
3 bedroom apartment for sale in Westminster Road, Branksome Park, Poole, Dorset, BH13 — £1,145,000 • 3 bed • 3 bath • 1645 ft²
3 bedroom apartment for sale in The Avenue, Branksome Park, Dorset, BH13 — £1,195,000 • 3 bed • 2 bath • 1182 ft²
3 bedroom apartment for sale in Lakeside Road, Branksome Park, BH13 — £600,000 • 3 bed • 2 bath • 1345 ft²
3 bedroom apartment for sale in Westminster Road, Poole, Dorset, BH13 — £1,450,000 • 3 bed • 2 bath • 2680 ft²
3 bedroom apartment for sale in Teak Close, 1 Westminster Road, Poole, BH13 — £875,000 • 3 bed • 2 bath • 1441 ft²
3 bedroom apartment for sale in Westminster Road, Poole, Dorset, BH13 — £1,395,000 • 3 bed • 3 bath • 1724 ft²


























































































