Income now with clear planning consent for seven flats — central, transport-linked, value‑add potential..
Income-producing freehold: £68,000 per annum total.
Planning consent to add two floors and form seven flats (ref 25/00414/FUL).
Prominent corner site immediately opposite Chelmsford railway station.
Ground tenant holding over at passing rent £40,000 pa.
First-floor tenant lease expires August 2027, outside 1954 Act.
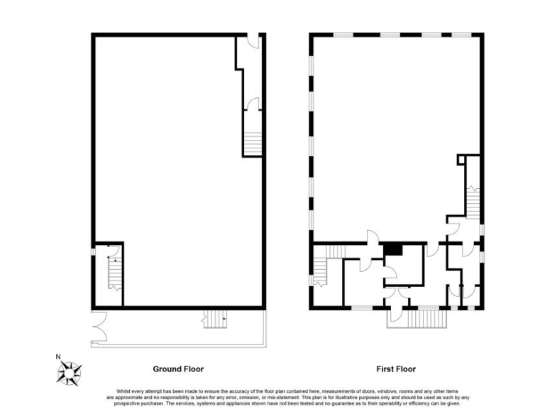
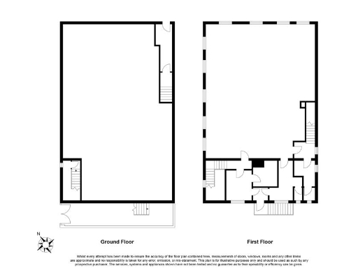
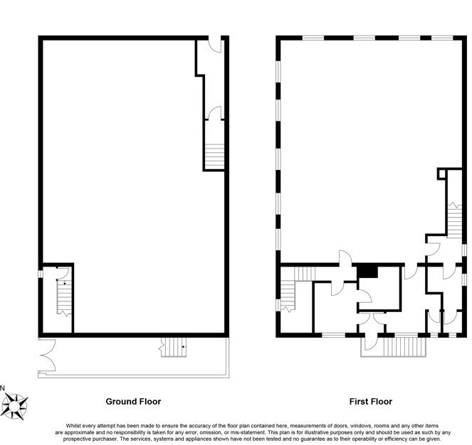
Total internal area 3,327 sq ft (large central footprint).
No external garden or amenity space; town-centre setting.
Area records very high crime; refurbishment and energy upgrades likely.
This town-centre freehold at 65 Duke Street offers a secure, immediate income of £68,000 pa from two commercial tenants and sits directly opposite Chelmsford mainline station—excellent for tenant demand and future residential conversion. The site is large for a central high-street plot and benefits from long daily footfall, transport links to London (35 minutes), and a prominent glazed corner frontage.
Planning permission (ref 25/00414/FUL) already permits converting the first floor and adding two floors to create seven flats, presenting a clear value‑add route for an investor prepared to manage redevelopment. The ground floor currently produces a passing rent of £40,000 pa (Spicerhaart holding over); the first floor is let to Escape Live until August 2027 at £28,000 pa (outside s.1954 protection), allowing short-term income while planning or works proceed.
Buyers should note material considerations: the area records very high crime levels, there is no external amenity or garden, and the first-floor lease expires in 2027 which may affect vacant possession timing for conversion. External condition is described as fair with scope for refurbishment; EPCs are C-55 (ground) and D-83 (first), so energy improvements are likely required with conversion.
This property will suit investors seeking core income with medium-term development upside. It also offers flexibility—ground and first floors may be considered for separate sale—making it suitable for portfolio buyers, developers targeting central rental flats, or bond‑like income purchasers prepared to manage planning and refurbishment risks.
High street retail property for sale in 95 High Street, Chelmsford, Essex, CM1 1DX, CM1 — £650,000 • 1 bed • 1 bath • 3597 ft²
High street retail property for sale in Shop Unit G, Marconi Evolution, Cunard Square, Chelmsford CM1 1AQ, CM1 — £180,000 • 1 bed • 1 bath • 1345 ft²
High street retail property for sale in Shop Unit N, Marconi Evolution, Cunard Square, Chelmsford CM1 1AQ, CM1 — £225,000 • 1 bed • 1 bath • 1650 ft²
High street retail property for sale in Shop Unit M - Split 1, Marconi Evolution, Cunard Square, Chelmsford CM1 1AQ, CM1 — £115,000 • 1 bed • 1 bath • 642 ft²
High street retail property for sale in Shop Unit F2, Marconi Evolution, Cunard Square, Chelmsford CM1 1AQ, CM1 — £225,000 • 1 bed • 1 bath • 1648 ft²
Office for sale in Suite, 25-29 Springfield Road, Chelmsford CM2 6JE, CM2 — £950,000 • 1 bed • 1 bath • 4675 ft²














