Low-maintenance two-bedroom home with garage and driveway near M5.
Chain-free freehold coach house with internal garage access
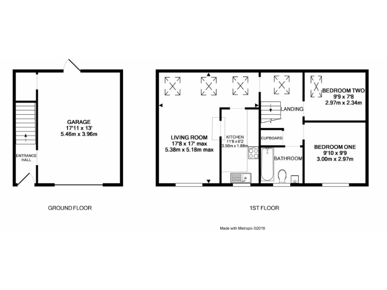
This modern two-bedroom detached coach house, built in 2007, is offered freehold and chain-free — a straightforward purchase for a first-time buyer or small family. The property presents neutrally throughout with an open-plan living area, fitted kitchen, and two double bedrooms on the upper floor. A large single garage and driveway provide secure off-street parking and direct internal access.
The rear garden is enclosed and low-maintenance, suitable for outdoor sitting or children’s play. Practical features include gas central heating, double glazing and an EPC rating of C. Its location on Riverside Close places it close to local schools, Bridgwater town centre services and direct routes to the M5, making commuting and day-to-day life convenient.
Buyers should note the immediate area scores as deprived with a higher-than-average crime level and a neighbourhood profile described as transitional with constrained rental demand — factors that can affect long-term resale and rental prospects. The plot is small and the property footprint is average in size; there is a single bathroom only, so space is best suited to couples, small families or buy-to-let purchasers accepting modest room counts.
Overall, this coach house offers move-in-ready accommodation with sensible running costs (very cheap council tax band) and good connectivity. It will particularly suit buyers prioritising convenience, low-maintenance outdoor space and straightforward access to transport links, while those seeking large gardens, quiet affluence or strong rental market conditions should weigh the local area characteristics carefully.
2 bedroom coach house for sale in Marsa Way, Bridgwater, Somerset, TA6 — £176,000 • 2 bed • 1 bath • 706 ft²
2 bedroom coach house for sale in Lilliana Way, Bridgwater, TA5 — £179,950 • 2 bed • 1 bath • 679 ft²
2 bedroom coach house for sale in Quayside, Bridgwater, TA6 — £165,000 • 2 bed • 1 bath • 533 ft²
2 bedroom apartment for sale in Lords Way, Bridgwater, TA6 — £145,000 • 2 bed • 1 bath
2 bedroom coach house for sale in Vienna Way, Bridgwater, Somerset, TA6 6WS, TA6 — £185,000 • 2 bed • 1 bath • 602 ft²
2 bedroom coach house for sale in Standish Street, Bridgwater, TA6 — £179,950 • 2 bed • 1 bath • 555 ft²














































