Chain-free fixer-upper with garage and gardens, close to transport and schools.
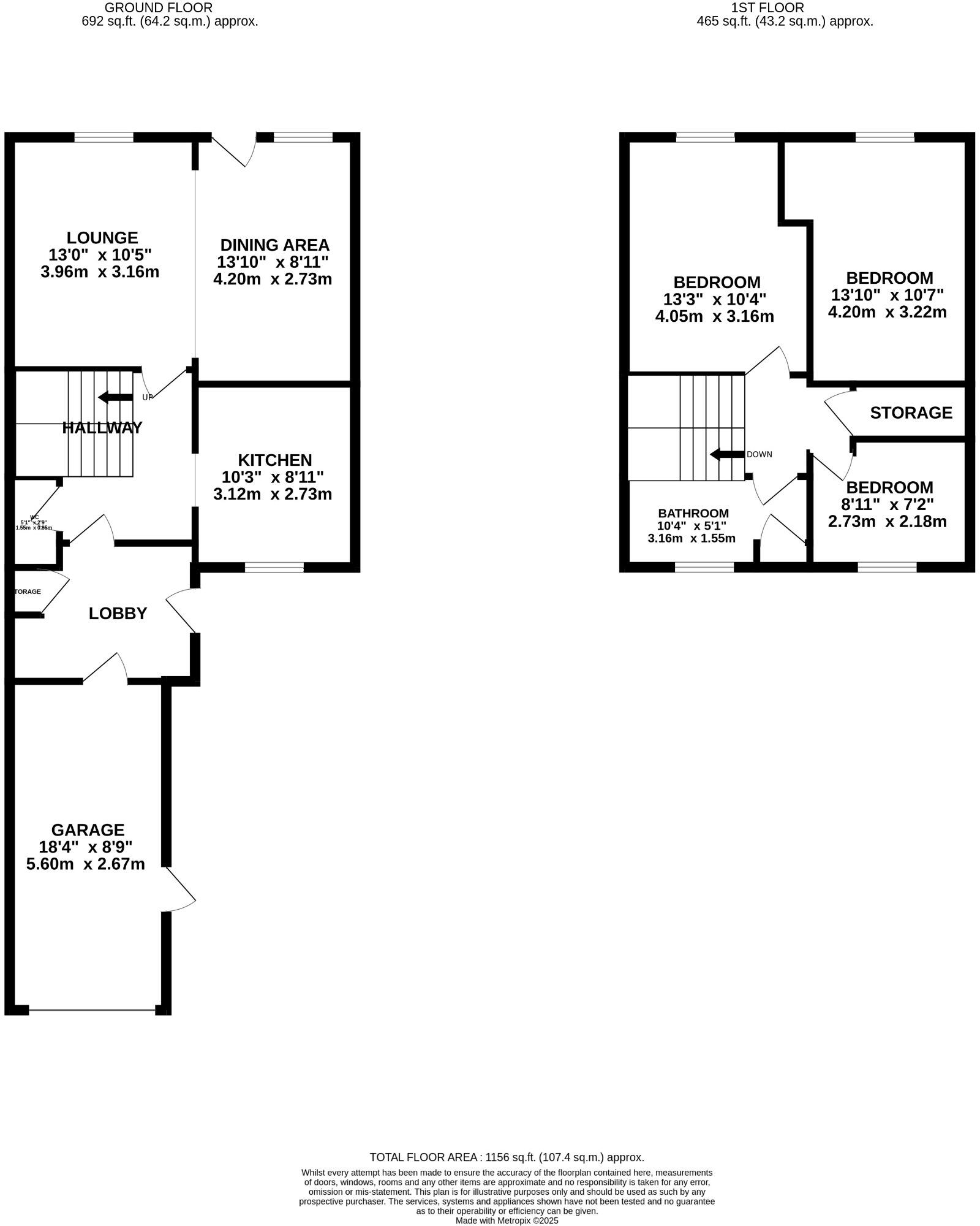
Three bedrooms in a compact mid-terrace layout
A compact three-bedroom mid-terrace offered chain free, suited to first-time buyers or landlords seeking a low-entry investment. The house has good footprint for its size with a lounge/diner flow, front and rear gardens and an integral garage accessed from a lobby.
The property requires modernisation throughout: cosmetic updating, kitchen and bathroom improvements and likely thermal upgrades because walls are system‑built and assumed to lack insulation. Heating is gas boiler and radiators and glazing is double; exact upgrade dates are unknown.
Practical strengths include no flood risk, excellent mobile signal and fast broadband — useful for commuting or home working. Local amenities, schools and bus routes are within walking distance, and the A48/M4 corridor is a short drive away.
Buyers should note the wider area scores as very deprived with a hampered local neighbourhood classification. The small overall plot and modest square footage suit buyers prepared to prioritise location and renovation potential over space. Council tax is described as affordable.
3 bedroom house for sale in Pennsylvania, Llanedeyrn, Cardiff, CF23 — £185,000 • 3 bed • 1 bath • 708 ft²
3 bedroom terraced house for sale in The Hawthorns, Cardiff, CF23 — £190,000 • 3 bed • 1 bath • 819 ft²
3 bedroom terraced house for sale in Sir Stafford Close, Caerphilly, CF83 — £190,000 • 3 bed • 1 bath • 829 ft²
3 bedroom end of terrace house for sale in Hill Rise, Cardiff, Caerdydd, CF23 — £215,000 • 3 bed • 1 bath • 950 ft²
3 bedroom end of terrace house for sale in Bryngolau Terrace, Pontllanfraith, , NP12 — £179,950 • 3 bed • 1 bath • 839 ft²
3 bedroom terraced house for sale in Orchard Street, Newport, NP19 — £180,000 • 3 bed • 1 bath • 1029 ft²






































