Affordable three-bed with refurbishment potential near local amenities and good transport links.
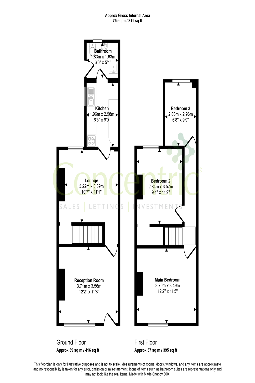
- Freehold Victorian/Edwardian mid-terrace, approx. 811 sq ft
- Three bedrooms with bay-fronted reception room
- EPC C and mains gas central heating
- Small rear garden; small overall plot
- Street parking only; no off-street parking
- Dated interiors; would benefit from refurbishment
- Solid brick walls likely uninsulated (energy upgrade opportunity)
- Local area: very deprived with above-average crime rates
This mid-terraced Victorian/Edwardian townhouse on Bruford Road offers three bedrooms across two storeys and a compact rear garden — a practical footprint for first-time buyers or buy-to-let investors. The property is freehold, has mains gas central heating, double glazing and an EPC rating of C, while council tax is very low, helping running costs.
Rooms are modest but functional, with a bay-fronted reception that preserves period character and an overall internal area of about 811 sq ft. The house sits on a residential street close to shops, schools and reliable public transport, making daily life convenient. Broadband speeds and mobile signal are reported as good.
The home will benefit from updating: finishes are dated and the solid brick walls likely lack modern insulation, so there is scope to add value by refurbishing and improving energy performance. External space is small and parking is on-street only. The local area is classified as very deprived with above-average recorded crime — important factors for buyers to consider.
Overall, this is an affordable entry-level period terrace with clear potential for refurbishment and rental appeal, but buyers should budget for improvements and consider local area conditions before committing.
3 bedroom terraced house for sale in Gorsebrook Road, Wolverhampton, WV6 — £170,000 • 3 bed • 1 bath • 1132 ft²
2 bedroom house for sale in Dudley Road, Wolverhampton, WV2 — £175,995 • 2 bed • 1 bath • 858 ft²
3 bedroom terraced house for sale in Gorsebrook Road, WOLVERHAMPTON, West Midlands, WV6 — £175,000 • 3 bed • 1 bath • 644 ft²
3 bedroom terraced house for sale in Birmingham New Road, Bilston, WV14 — £180,000 • 3 bed • 1 bath • 765 ft²
3 bedroom terraced house for sale in Gordon Street, All Saints, Wolverhampton, WV2 — £185,000 • 3 bed • 1 bath • 724 ft²
3 bedroom terraced house for sale in Park Street South, Wolverhampton, WV2 — £230,000 • 3 bed • 1 bath • 1522 ft²






























































