Spacious family living with south-facing garden near the seafront.
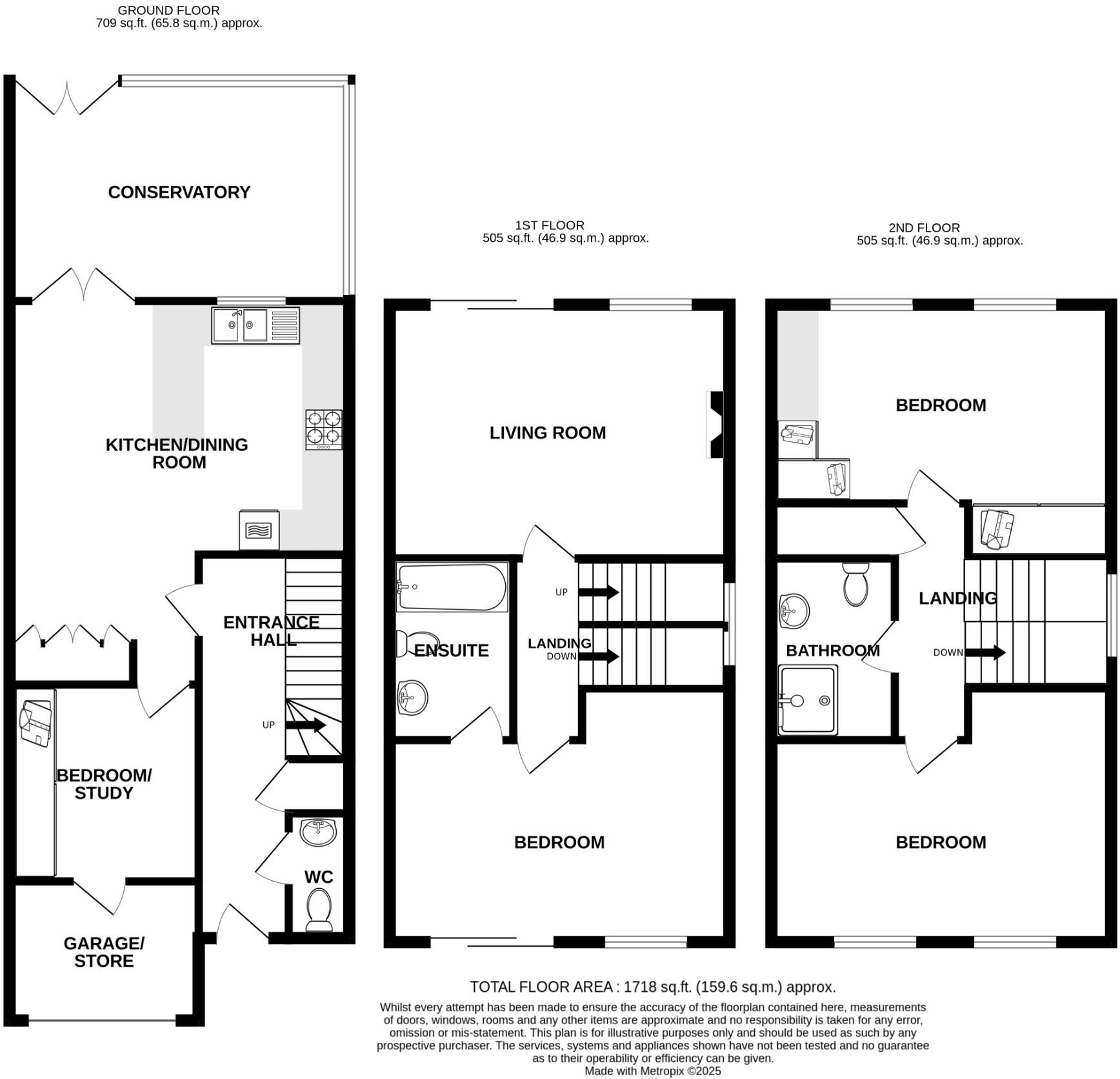
4 double bedrooms plus study or bedroom four
Open-plan 18'6 x 16'4 kitchen/dining room
14'6 Victoriana conservatory, bright southerly aspect
Master bedroom with ensuite bathroom and balcony access
Former garage converted to study/bedroom; reversible
South-facing landscaped paved rear garden, small plot
Off-road parking and driveway space
EPC D, council tax band F, slow broadband speeds
This Georgian-style three-storey end-of-terrace townhouse offers flexible family living across 1,718 sq ft, arranged as three double bedrooms plus a study/bedroom four. The bright open-plan kitchen/dining room links to a Victoriana-style conservatory, and the first-floor living room benefits from a Juliet-style balcony and southerly aspect over the landscaped rear garden.
Practical features include gas central heating, double glazing and off-road parking. The former integral garage has been converted to a study/bedroom and provides useful extra space — it can be reverted to a garage if required. The property sits in the favoured Meads area, under a quarter of a mile from the seafront and close to independent schools and local amenities.
Notable negatives to consider: the EPC rating is D and the council tax band is F (expensive). Broadband speeds in the area are reported as slow. The plot is described as small and the overall property size as average — landscaping is attractive but external space is limited. Tenure is not specified in the available information and should be checked.
This house will suit a family seeking a well-presented seaside townhouse with flexible accommodation and garden orientation, or buyers who value proximity to schools and the seafront. Buyers wanting very fast broadband, a larger plot, or a lower tax band should factor these points into their decision.
4 bedroom detached house for sale in Rowsley Road, Eastbourne, BN20 — £895,000 • 4 bed • 2 bath • 2078 ft²
4 bedroom detached house for sale in Rowsley Road, Eastbourne, BN20 — £895,000 • 4 bed • 2 bath • 1976 ft²
3 bedroom terraced house for sale in Chesterfield Gardens, Meads, Eastbourne, East Sussex, BN20 — £695,000 • 3 bed • 2 bath • 1607 ft²
4 bedroom detached house for sale in Hyde Tynings Close, Meads, Eastbourne, East Sussex, BN20 — £875,000 • 4 bed • 2 bath • 1455 ft²
2 bedroom town house for sale in Granville Road, Eastbourne, BN20 — £460,000 • 2 bed • 1 bath • 1020 ft²
4 bedroom detached house for sale in Lincoln Close, Eastbourne, BN20 — £1,000,000 • 4 bed • 3 bath • 2077 ft²


































































