**Standout Features:**
- Two double bedrooms with potential for an ensuite
- Spacious garage with storage options
- South-facing rear garden perfect for outdoor relaxation
- Located in a quiet cul-de-sac
- Energy Performance Certificate (EPC) rating of C
- Low crime area with excellent mobile signal and fast broadband speeds
- Close proximity to a convenience store and local amenities
**Summary:**
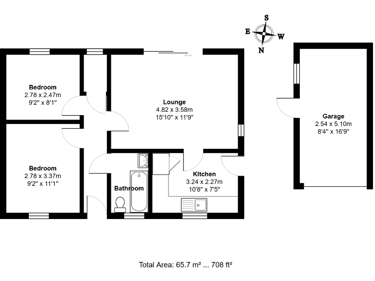
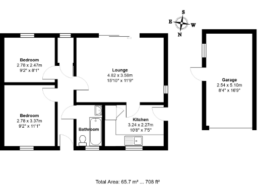
Discover an inviting two-bedroom detached bungalow situated in the peaceful cul-de-sac of Old Felixstowe. This charming residence boasts a spacious garage and a south-facing rear garden, ideal for those who value outdoor space. The property features a thoughtfully designed layout with a comfortable lounge, a compact yet functional kitchen, and the potential to convert a store cupboard into an ensuite bathroom, enhancing the home's appeal.
With average room sizes perfect for small families or first-time buyers, the bungalow presents a cozy living experience within a thriving, affluent community. Enjoy the convenience of nearby amenities including schools with good Ofsted ratings, parks, and a convenience store, making this a prime location for family-oriented living. The property’s low crime rate and excellent broadband connectivity provide peace of mind and modern lifestyle advantages. Don't miss this opportunity to secure a comfortable home with great potential—properties like this in such a desirable area are not available for long!
3 bedroom detached bungalow for sale in Colneis Road, Felixstowe, IP11 — £459,000 • 3 bed • 2 bath • 1282 ft²
2 bedroom detached bungalow for sale in Rosemary Avenue, Felixstowe, IP11 — £350,000 • 2 bed • 1 bath • 1357 ft²
2 bedroom semi-detached bungalow for sale in Upperfield Drive, Felixstowe, IP11 — £335,000 • 2 bed • 1 bath • 913 ft²
2 bedroom detached bungalow for sale in Cloncurry Gardens, Felixstowe, IP11 — £265,000 • 2 bed • 1 bath • 614 ft²
2 bedroom terraced bungalow for sale in Upperfield Drive, Felixstowe, IP11 — £305,000 • 2 bed • 1 bath • 1292 ft²
2 bedroom detached bungalow for sale in Colneis Road, Old Felixstowe, IP11 — £410,000 • 2 bed • 1 bath • 719 ft²






















































