Chain-free purchase with strong redevelopment potential for investors or renovators.
Detached 1930s bungalow on approx 0.16-acre plot
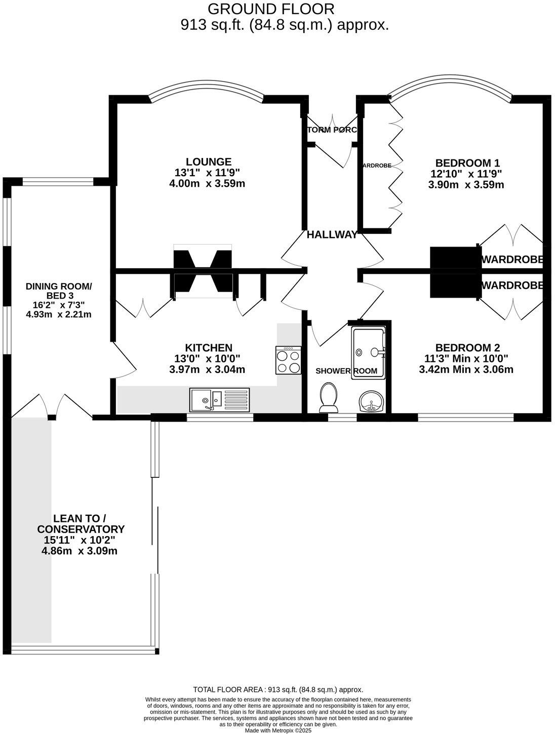
A rare detached 1930s bungalow on a large 0.16-acre plot, offered chain-free and for sale via secure online auction with a starting bid of £250,000. The property totals approximately 913 sq ft and currently provides two double bedrooms, an additional room suitable as a third bedroom or home office, a bay-fronted lounge, and a generous kitchen/breakfast room. A large lean-to gives direct access to the rear garden and a detached garage sits at street level.
This home requires full refurbishment and modernization throughout; dated kitchen fittings, mid-20th-century finishes and assumed uninsulated cavity walls are present. There is clear scope for improvement and further development (subject to planning permission), making the plot particularly attractive to investors or buyers seeking to create a larger single-level home. Immediate exchange of contracts is available for a speedy purchase process, and the property is freehold with no flood risk.
Practical benefits include mains gas central heating, double glazing, fast broadband and excellent mobile signal, plus low local crime and good nearby schools. Viewings are strictly by appointment and the sale is conducted under secure auction terms, including identity verification and standard auction conditions. Buyers should factor in renovation costs, planning application timeframes if extending, and typical works to bring services and finishes up to modern standards.
3 bedroom detached bungalow for sale in Lancelot Avenue, Strood, Rochester, Kent, ME2 2YX, ME2 — £250,000 • 3 bed • 1 bath • 913 ft²
2 bedroom detached bungalow for sale in Haig Avenue, Chatham, Kent, ME1 — £400,000 • 2 bed • 1 bath • 724 ft²
3 bedroom bungalow for sale in Gravesend Road, Higham, Rochester, Kent, ME3 — £550,000 • 3 bed • 1 bath • 1130 ft²
2 bedroom detached bungalow for sale in Haig Avenue, Rochester, ME1 — £400,000 • 2 bed • 1 bath • 3275 ft²
2 bedroom semi-detached bungalow for sale in Newbury Avenue, Maidstone, ME16 0RE, ME16 — £270,000 • 2 bed • 1 bath • 592 ft²
2 bedroom semi-detached bungalow for sale in Delce Road, Rochester, ME1 — £230,000 • 2 bed • 1 bath






















































