**Standout Features:**
- Detached four-bedroom bungalow
- Spacious open-plan living area
- Two bath/shower rooms
- Generous garden with a garden cabin
- Prime town centre location
- Low crime rate in an affluent community
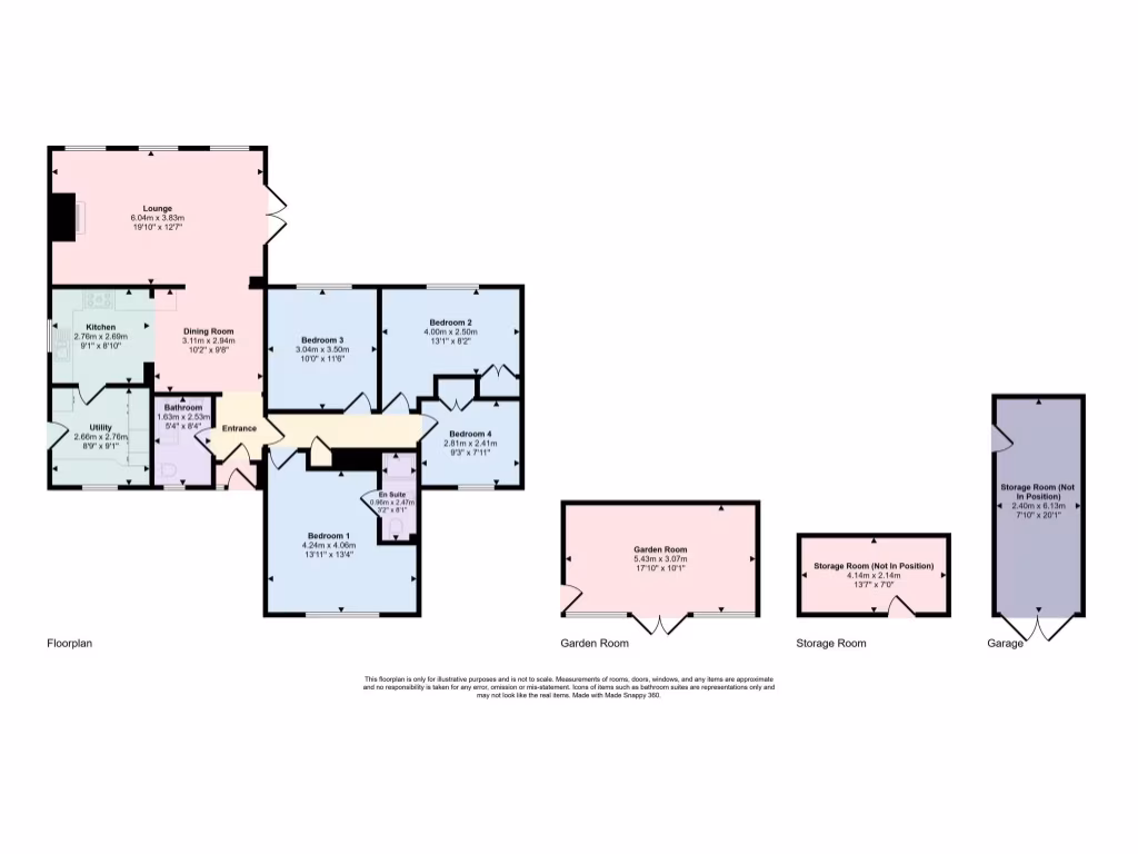
**Summary:**
Discover this charming four-bedroom detached bungalow, perfectly situated just moments from Verwood's bustling town centre, where you’ll find a variety of local amenities including eateries, a pharmacy, and recreational facilities. This property features an inviting open-plan living space that seamlessly flows into a bright living room adorned with a stunning fireplace and French doors, leading to a delightful patio area overlooking the lush garden, making it ideal for entertaining or family gatherings.
The modern kitchen boasts ample storage, a range-style cooker, and convenient access to a utility room. Each of the four double bedrooms provides generous space, with the master benefiting from an ensuite, while the family bathroom is beautifully tiled for added appeal. Enjoy the expansive outdoor space highlighted by a well-kept lawn, two seating areas, and a versatile garden cabin perfect for an office, gym, or playroom.
Despite its family-friendly layout and potential for personalization, the property is in average condition for its age and may require some decorative updates. This home is a perfect fit for families seeking space, investors looking for rental potential, or first-time buyers eager for a vibrant lifestyle. Don’t miss the chance to view this unique property—homes like this in such a desirable area don’t last long!
4 bedroom bungalow for sale in Lake Road, Verwood, Dorset, BH31 — £615,000 • 4 bed • 2 bath • 1383 ft²
3 bedroom bungalow for sale in Edmondsham Road, Verwood, Dorset, BH31 — £635,000 • 3 bed • 2 bath • 1227 ft²
2 bedroom semi-detached bungalow for sale in Verwood, BH31 — £235,000 • 2 bed • 1 bath • 547 ft²
2 bedroom detached bungalow for sale in Verwood, BH31 — £400,000 • 2 bed • 2 bath • 835 ft²
3 bedroom detached bungalow for sale in Verwood, BH31 — £575,000 • 3 bed • 2 bath • 1089 ft²
3 bedroom detached bungalow for sale in Verwood, BH31 — £450,000 • 3 bed • 2 bath • 991 ft²






























































































