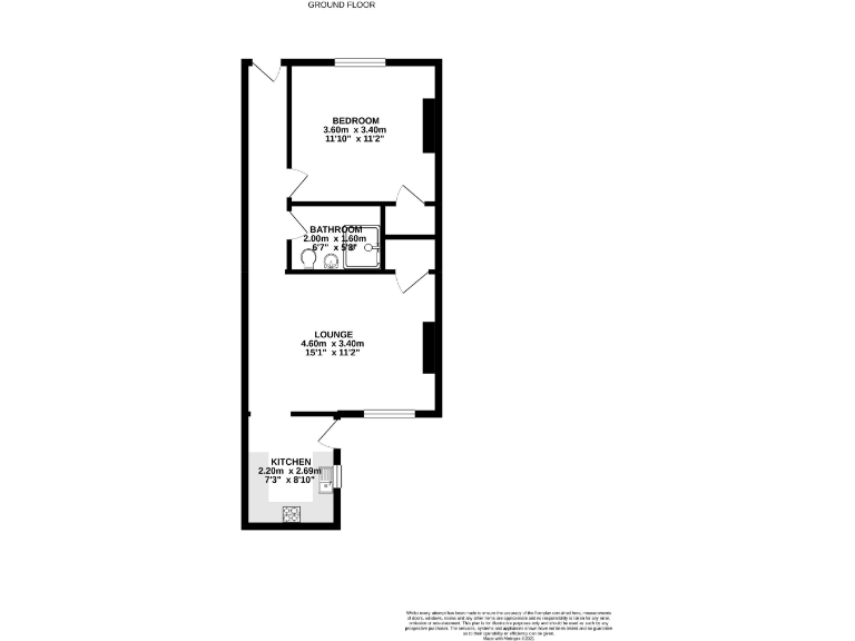
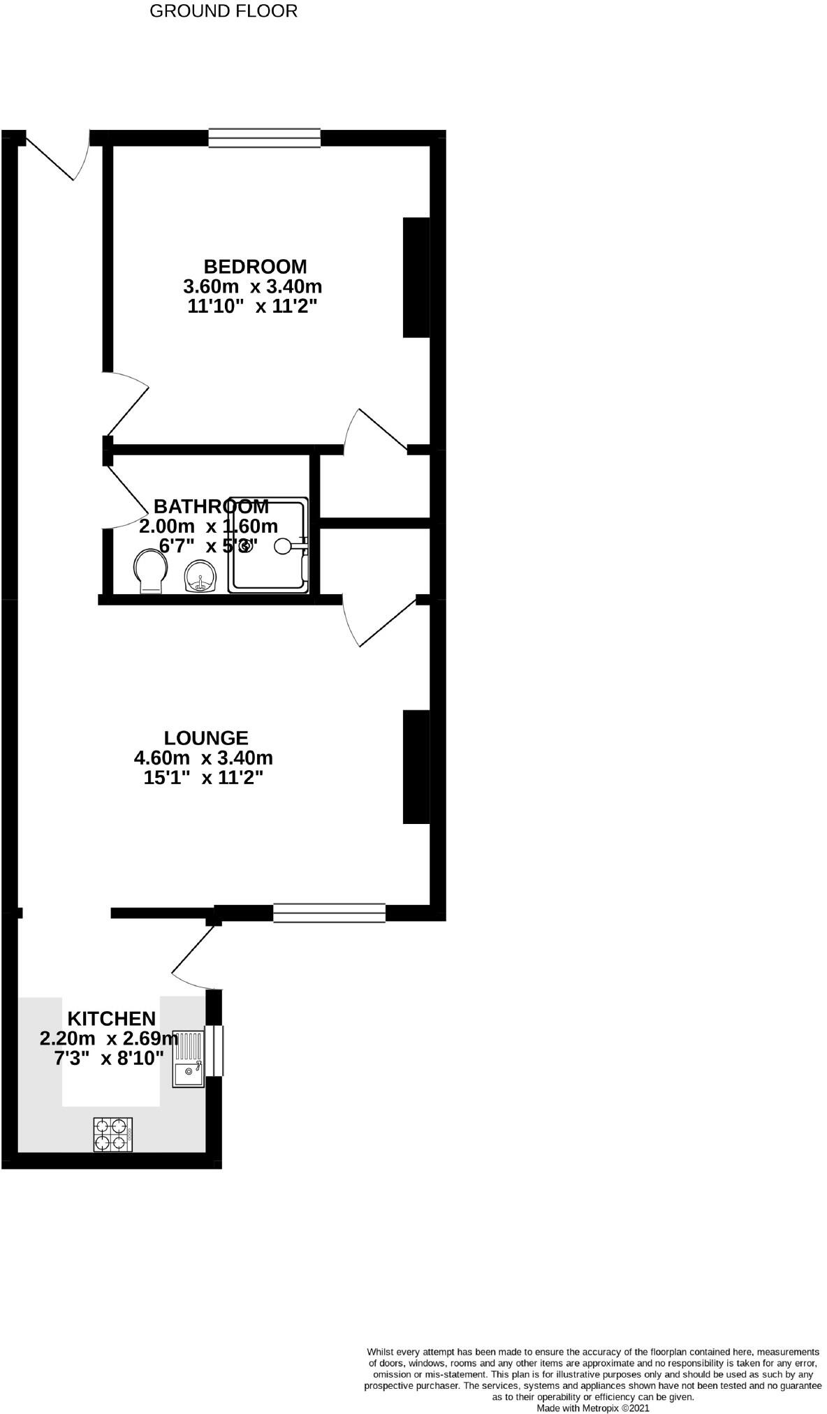
**Standout Features:**
- One double bedroom with built-in wardrobe
- Spacious sitting room and dining area
- Recently fitted kitchen with integrated appliances
- Modern shower bathroom with heated towel rail
- Private outdoor space (patio garden)
- Chain-free purchase with 972-year lease
- Located in vibrant Southville near amenities
- Low council tax and excellent mobile signal
**Notable Concerns:**
- Size may be compact (approximately 420 sq ft)
- Maintenance of older sandstone walls (no insulation assumed)
---
Discover comfort and convenience in this charming one-bedroom garden flat on Mount Pleasant Terrace, Southville. This home features a spacious sitting room seamlessly flowing into a recently renovated kitchen adorned with sleek grey gloss cabinets, wooden worktops, and essential integrated appliances. The modern bathroom boasts a stylish shower and heated towel rail, ensuring both function and comfort.
Step outside to your private patio garden—ideal for morning coffee or relaxed evenings with friends. Nestled in the heart of a thriving BS3 community, you’ll find a diverse array of local shops, restaurants, and schools within easy reach. This property is perfect for first-time buyers looking to immerse themselves in a cosmopolitan neighborhood. Don’t miss this unique opportunity to own a piece of Southville's vibrant lifestyle—make it yours today!
1 bedroom flat for sale in Mount Pleasant Terrace, Southville, BS3 — £240,000 • 1 bed • 1 bath • 1130 ft²
1 bedroom apartment for sale in Summer Street, Bristol, BS3 — £325,000 • 1 bed • 1 bath • 577 ft²
1 bedroom apartment for sale in The Nursery, Bedminster, Bristol, BS3 — £270,000 • 1 bed • 1 bath • 412 ft²
1 bedroom apartment for sale in Gwilliam Street, Bristol, BS3 — £230,000 • 1 bed • 1 bath • 419 ft²
1 bedroom flat for sale in Vauxhall Villas, Walter Street, Southville, Bristol, BS3 — £275,000 • 1 bed • 1 bath • 883 ft²
1 bedroom flat for sale in Bristol Hill, Brislington, Bristol, BS4 — £215,000 • 1 bed • 1 bath • 646 ft²










































