**Standout Features:**
- 3 spacious bedrooms and 2 modern bathrooms, including an ensuite to the master
- Energy-efficient design with integrated solar panels and electric vehicle charger
- Open-plan kitchen and dining area with contemporary finishes
- Private garden and detached garage with parking for two cars
- Proximity to community amenities: playground, school, and parks
- 10-year NHBC warranty for added peace of mind
- Part exchange option available, ideal for first-time buyers
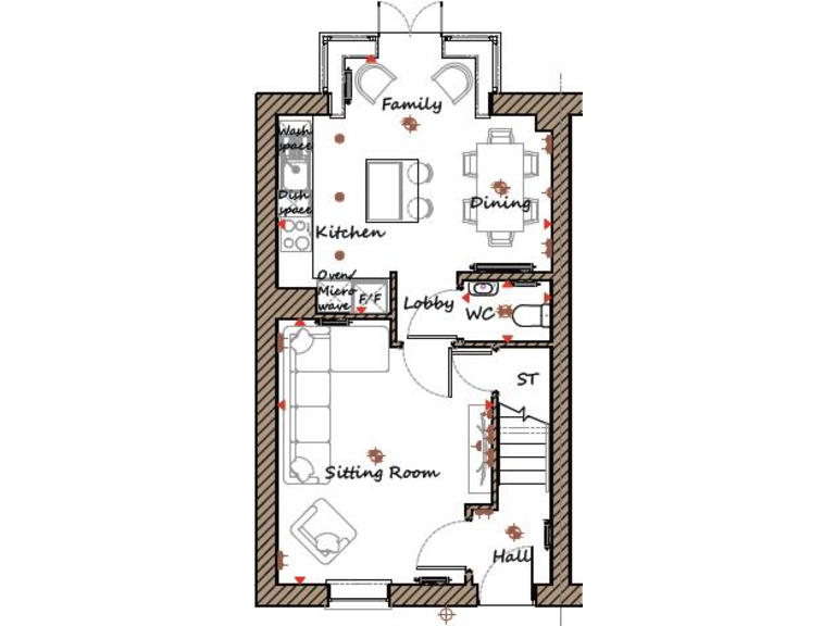
This striking 3-bedroom semi-detached home in The Burrows, New Lubbesthorpe, offers a perfect blend of modern living and timeless charm. Set over three floors with 1,120 square feet, this meticulously designed property features a spacious open-plan kitchen and dining area that is suffused with natural light, thanks to its striking glass pod and patio doors leading to a landscaped rear garden. The Georgian-inspired exterior boasts delightful architectural details, enhancing its curb appeal.
Families will appreciate the community-focused development, which includes a nearby primary school, play areas, and expansive green spaces within the 325 acres of new parkland and wetlands. With low running costs from energy-efficient technologies and the ease of modern living, this home is an exceptional opportunity for first-time buyers or those seeking an upgrade. Don’t miss out on a chance to become part of this vibrant community—where homes of the future meet comfort and sustainability!
3 bedroom detached house for sale in The Burrows
Off Dee Way
New Lubbesthorpe
Leicestershire
LE19 0LF, LE19 — £384,995 • 3 bed • 1 bath
3 bedroom detached house for sale in The Burrows
Off Dee Way
New Lubbesthorpe
Leicestershire
LE19 0LF, LE19 — £389,995 • 3 bed • 1 bath • 1020 ft²
3 bedroom detached house for sale in The Burrows
Off Dee Way
New Lubbesthorpe
Leicestershire
LE19 0LF, LE19 — £354,995 • 3 bed • 1 bath • 1036 ft²
3 bedroom detached house for sale in The Burrows
Off Dee Way
New Lubbesthorpe
Leicestershire
LE19 0LF, LE19 — £374,995 • 3 bed • 1 bath • 1001 ft²
2 bedroom semi-detached house for sale in The Burrows
Off Dee Way
New Lubbesthorpe
Leicestershire
LE19 0LF, LE19 — £284,995 • 2 bed • 1 bath • 728 ft²
3 bedroom detached house for sale in The Burrows
Off Dee Way
New Lubbesthorpe
Leicestershire
LE19 0LF, LE19 — £374,995 • 3 bed • 1 bath


































































