Ideal for first-time buyers or buy-to-let investors seeking central Tadcaster convenience.
Two large double bedrooms with built-in storage
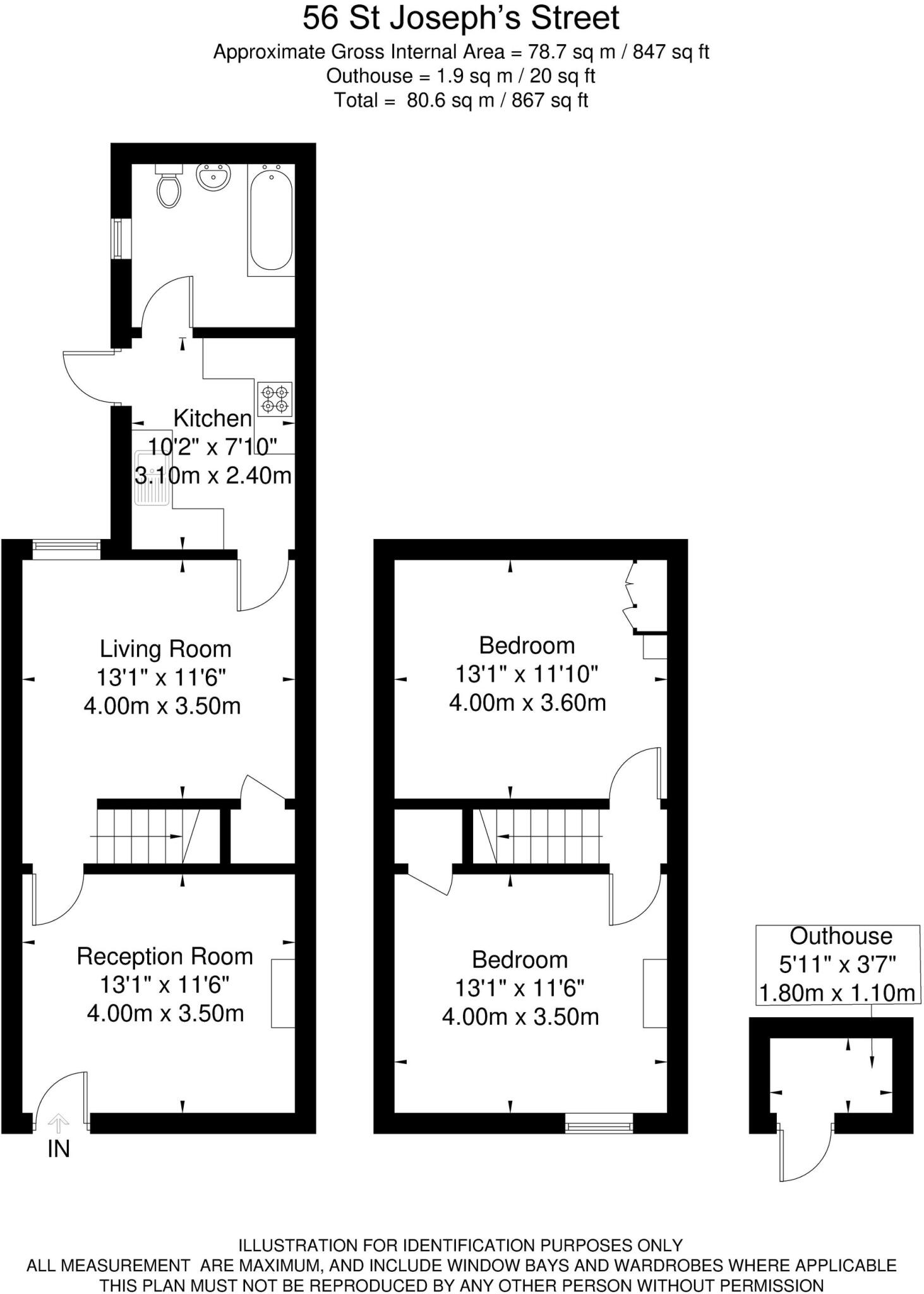
Set in the centre of Tadcaster, this red-brick Victorian mid-terrace combines period character with practical living across two generous reception rooms and two large double bedrooms. Features such as sash windows, cast-iron fireplaces and two wood-burning stoves give the home immediate warmth and traditional appeal, while the layout suits first-time buyers or investors seeking a reliable rental footprint.
The ground-floor kitchen is fitted with oak units and Corian worktops and flows to a rear yard and handy outhouse for secure storage. A sizable ground-floor bathroom with mains shower adds convenience. The property is offered freehold and with no onward chain, simplifying purchase for buyers who want to move quickly.
There is scope to add value: the loft could be converted (subject to consents) and the solid-brick walls are assumed uninsulated, so improvement works could reduce running costs and raise the EPC rating. The house sits on a small plot close to schools, shops and local leisure amenities, with excellent mobile signal and fast broadband — a practical town-centre base.
Important considerations: the property dates from before 1900 and has solid-brick walls likely without cavity insulation, and its EPC is D, so expect potential energy-efficiency upgrades. The plot is small and outdoor space is a yard rather than a garden. Overall this is a straightforward, characterful purchase aimed at first-time buyers or investors willing to carry modest improvement work.
2 bedroom terraced house for sale in Spring Hill, Tadcaster, LS24 — £190,000 • 2 bed • 1 bath • 1499 ft²
2 bedroom terraced house for sale in Stutton Road, Tadcaster, LS24 — £270,000 • 2 bed • 1 bath • 1205 ft²
3 bedroom terraced house for sale in Spring Hill, Tadcaster, LS24 8AD, LS24 — £220,000 • 3 bed • 2 bath • 860 ft²
2 bedroom terraced house for sale in Hawthorn Avenue, Tadcaster, North Yorkshire, LS24 — £220,000 • 2 bed • 1 bath • 569 ft²
4 bedroom terraced house for sale in Leeds Road, Tadcaster, LS24 — £335,000 • 4 bed • 2 bath • 1152 ft²
2 bedroom semi-detached house for sale in Parkland Drive, Tadcaster, LS24 — £239,999 • 2 bed • 1 bath • 678 ft²


















































