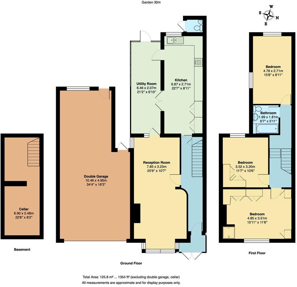
- Large 30m (approx) private rear garden
- Substantial double garage with driveway parking
- Spacious through reception with original period features
- Approximately 1,354 sq ft across ground and first floors
- One family bathroom only; potential for ensuite conversion
- Solid brick construction assumed uninsulated — retrofit likely
- Above-average local crime and relatively deprived area
- Short walk to Leyton Midland Road station and Jubilee Park
A rarely-available three-bedroom semi-detached house on Grange Park Road with a large plot and substantial double garage. The property offers generous room proportions across about 1,354 sq ft, a long private rear garden and a cellar — all useful for families or buyers seeking scope to extend or refurbish.
The home retains period character in the through reception (bay window, coving, fireplace) and benefits from double glazing, mains gas central heating and good broadband and mobile signal. Leyton Midland Road station and Jubilee Park are short walks away, with local schools and Francis Road amenities close by, making daily life straightforward.
Practical realities are clear: there is one family bathroom, the property dates from the 1930–49 era and the solid brick walls are assumed uninsulated, so investment in modern insulation and updating may be needed. The area records above-average crime statistics and is relatively deprived — factors to weigh alongside the location and plot size.
Overall this freehold house suits a family wanting space and garden privacy, or an investor/owner-occupier planning deliberate upgrades. The double garage and cellar provide alternative uses (home gym, studio, workshop) subject to any consents, while the large garden and wide reception create a strong base for a refreshed, contemporary layout.
3 bedroom terraced house for sale in Grange Park Road, Leyton, London, E10 — £750,000 • 3 bed • 1 bath • 938 ft²
4 bedroom semi-detached house for sale in Lyttelton Road, London, E10 — £800,000 • 4 bed • 3 bath • 1884 ft²
4 bedroom detached house for sale in Essex Road, Leyton, E10 — £900,000 • 4 bed • 1 bath • 1860 ft²
4 bedroom terraced house for sale in Markmanor Avenue, Walthamstow, London, E17 — £770,000 • 4 bed • 2 bath • 1516 ft²
3 bedroom semi-detached house for sale in Foresters Drive, Walthamstow, London, E17 — £875,000 • 3 bed • 1 bath • 1208 ft²
4 bedroom terraced house for sale in Forest Drive East, London, E11 — £1,150,000 • 4 bed • 2 bath • 2839 ft²


























































































































































