Spacious family home near parks and top-rated schools.
Commanding corner plot with decent sized rear garden
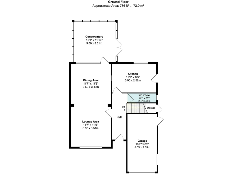
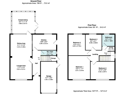
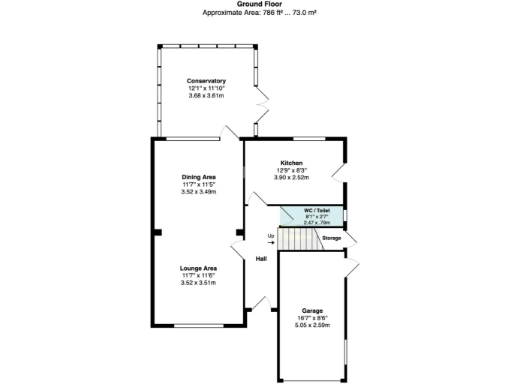
Set on a commanding corner plot in Bramhall, this detached four-bedroom home suits growing families who value space and local schools. The layout includes a generous lounge, separate dining room leading to a conservatory, and a fitted kitchen with side access. A single, modern family bathroom serves four bedrooms and there is a convenient downstairs WC.
Practical features include an integral garage with driveway parking for up to three cars, majority uPVC double glazing and a decent sized rear garden backing onto popular walking routes. The garage offers scope for internal access and conversion (subject to building regulations) if you need extra living space or a home office.
Buyers should note a few practical considerations: the property dates from the mid-20th century and has an EPC rating of D; the exact window install dates are unknown. Council tax is above average for the area, and there is a small annual rent charge of around £21. Freehold tenure and a very affluent neighbourhood make this a solid long-term family purchase close to Bramhall Park, Happy Valley and good schools.
5 bedroom detached house for sale in Carrwood Avenue, Bramhall, SK7 — £1,250,000 • 5 bed • 2 bath • 2099 ft²
5 bedroom detached house for sale in Eskdale Avenue, Bramhall, SK7 — £549,500 • 5 bed • 2 bath • 1690 ft²
2 bedroom detached bungalow for sale in Ashness Drive, Bramhall, SK7 — £499,500 • 2 bed • 1 bath • 1184 ft²
4 bedroom detached bungalow for sale in St. Michaels Avenue, Bramhall, SK7 — £799,950 • 4 bed • 2 bath • 1849 ft²
4 bedroom detached house for sale in Redford Drive, Bramhall, SK7 — £450,000 • 4 bed • 2 bath • 1245 ft²
4 bedroom detached house for sale in Langley Avenue, Hazel Grove, SK7 — £765,000 • 4 bed • 1 bath • 1496 ft²






































































































