ME14 1BG - 2 bedroom retirement property for sale in Kings Lodge, Maid…

View on Property Piper

2 bedroom retirement property for sale in Kings Lodge, Maidstone, ME14

Summary - Apartment 52 Kings Lodge, 71, King Street, MAIDSTONE ME14 1BG

2 bed 1 bath Retirement Property

Ready-to-move two-bed retirement apartment with careline and guest suite, close to Maidstone centre..
Two-bedroom third-floor apartment, freshly carpeted throughout
Modern fitted kitchen with integrated appliances
24-hour Careline, secure entry and Lodge Manager five days weekly
Guest Suite available for visitor stays across Churchill Living sites
Air source heat pump for efficient heating
Owners’ private off-street car park and landscaped communal gardens
Above-average service charge £5,395.41 pa and ground rent £625 pa
Very slow broadband; local crime level reported as very high
This third-floor, two-bedroom retirement apartment in Kings Lodge offers comfortable, low-maintenance living close to Maidstone town centre. At around 576 sq ft the interior is freshly carpeted and presented ready to move into, with a modern fitted kitchen and integrated appliances. The development is designed for older owners and includes a 24-hour Careline, secure entry, and an on-site Lodge Manager five days a week.

Owners benefit from communal facilities including landscaped gardens, an Owners’ Lounge with regular events, and a bookable Guest Suite for visitors (also available across Churchill Living sites). Heating is energy-efficient via an air source heat pump and the apartment is chain-free with a long lease (around 117 years remaining), making it straightforward to buy and move in.

Buyers should note the full cost of communal living: an above-average service charge (£5,395.41 pa) and an annual ground rent (£625) apply, and broadband speeds in the building are reported as very slow. The property sits on the third floor of a multi-storey block; while lifts are maintained, mobility within communal areas should be considered. Local crime statistics are high for the area, so prospective purchasers may wish to review local safety measures in person.

Overall this is a practical, modern retirement apartment suited to someone seeking a secure, community-focused home near Maidstone’s amenities. It suits buyers wanting turn-key accommodation with supportive on-site services, provided they are comfortable with the service costs and local broadband/crime considerations.

Property Details

Brochure Descriptions

Image Descriptions

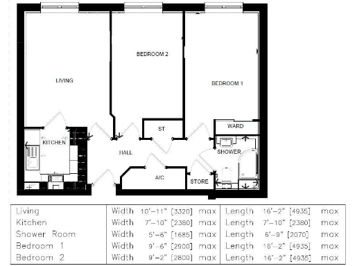
Floorplan Description

Rooms

Textual Property Features

Target Audience

AI Tags

Detected Visual Features

EPC Details

Nearby Schools

Nearest Bars And Restaurants

,,,,}

Nearest General Shops

,,}

Nearest Grocery shops

,,}

Nearest Supermarkets

,,}

Nearest Religious buildings

,,}

Nearest Medical buildings

,,,}

Nearest Leisure Facilities

,,,,}

Nearest Tourist attractions

,,}

Nearest Train stations

,,,,}

Nearest Bus stations and stops

,,,,}

Nearest Hotels

,,}

Tags

Local Market Stats

AirBnB Data

Similar Properties

Meta

High Res Images

Compatible Images

Low res Images

Thumbnails

Raw Images

High Res Floorplan Images

Compatible Floorplan Images

Low res Floorplan Images

FloorplanImages Thumbnail

Raw Floorplan Images