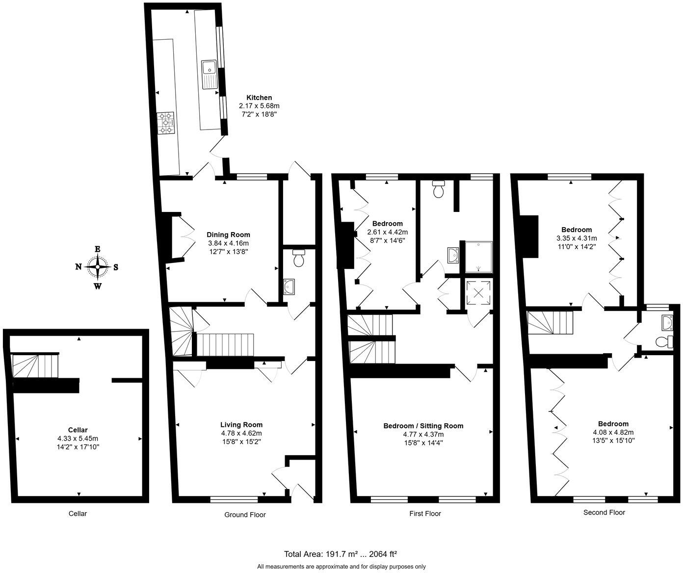
Grade II listed four-bedroom home moments from Devizes Market Place.
- Grade II listed 19th-century townhouse full of period features
- Four well-proportioned bedrooms across upper floors
- Two reception rooms with high ceilings and sash windows
- Private, low-maintenance walled courtyard garden
- Useful cellar providing strong storage or hobby space
- No onward chain; ready to move into with scope to personalise
- Listed status may restrict alterations and complicate maintenance
- No allocated parking; on-street parking and public car parks nearby
Set on one of Devizes’ most attractive historic streets, this Grade II listed four-bedroom townhouse blends period character with ready-to-move-in presentation. Two reception rooms, high ceilings and original mouldings create warm, versatile living spaces for family life and entertaining. The galley kitchen leads to a private, low-maintenance walled courtyard—ideal for breakfasts or relaxed evenings.
Practical storage is provided by a useful cellar and sensible room proportions across three upper floors. The house is offered with no onward chain and benefits from fast broadband and excellent mobile signal, supporting home working or streaming. Public and private car parks are nearby and on-street parking is available, making town-centre convenience easy to enjoy.
Buyers should note the property’s listed status, which can restrict alterations and may complicate planning and maintenance. There is no allocated off-street parking and the plot is compact; the house has one family bathroom plus an additional WC. The surrounding area shows higher-than-average crime levels and local area deprivation indicators, facts to consider for some purchasers.
Overall this handsome period home will suit a family or professional household seeking central Devizes living with historic charm and manageable outdoor space, while accepting listed-property responsibilities and town-centre trade-offs.
3 bedroom town house for sale in Long Street, Devizes, Wiltshire, SN10 — £350,000 • 3 bed • 2 bath • 1558 ft²
4 bedroom terraced house for sale in Long Street, Devizes, Wiltshire, SN10 — £360,000 • 4 bed • 1 bath • 1411 ft²
3 bedroom semi-detached house for sale in Lansdowne Terrace, Devizes, Wiltshire, SN10 1NX, SN10 — £550,000 • 3 bed • 2 bath • 1889 ft²
2 bedroom terraced house for sale in St. Johns Street, Devizes, SN10 — £350,000 • 2 bed • 1 bath • 1545 ft²
3 bedroom terraced house for sale in St. John's Court, Devizes, SN10 — £400,000 • 3 bed • 3 bath • 1596 ft²
5 bedroom terraced house for sale in Long Street, Devizes, Wiltshire, SN10 — £385,000 • 5 bed • 2 bath • 2262 ft²






































































































