Family-friendly location with garden, garage and strong school links.
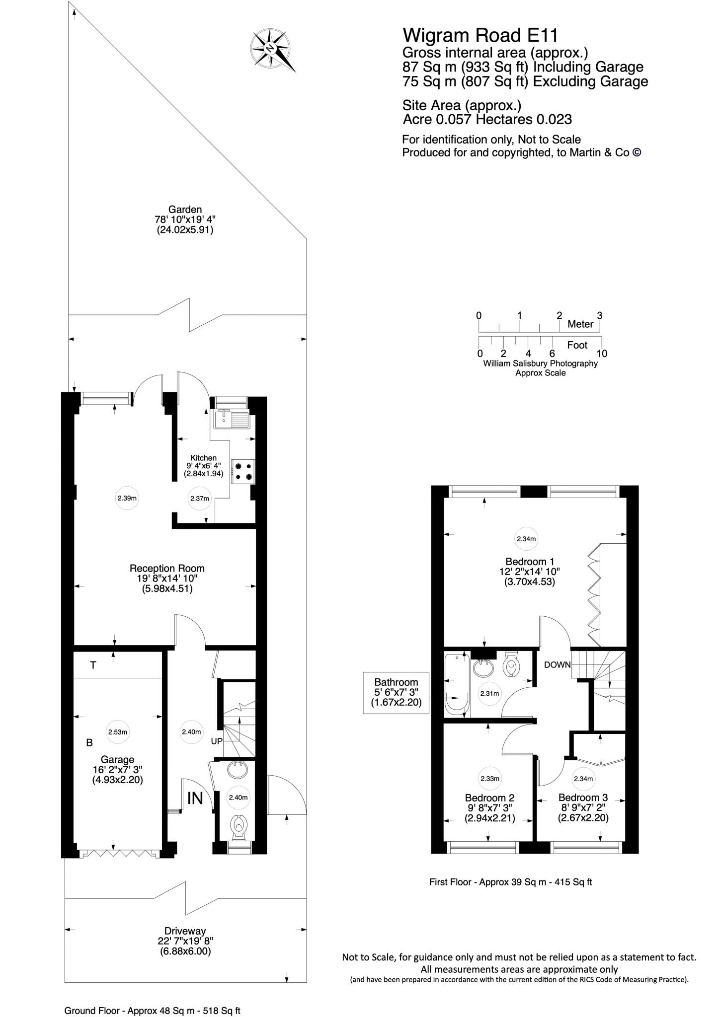
- Three bedrooms and family bathroom on first floor
- Good-sized rear garden, driveway and single garage
- Short walk to Wanstead Underground Station (Central Line)
- Close to Wanstead High Street shops and leisure facilities
- Approx 933 sq ft; average-sized family home
- Built c.1967–1975; likely needs modernisation and insulation
- No flood risk; excellent mobile signal and fast broadband
- Council tax moderate; area classed as very affluent
A three-bedroom end-of-terrace in Wanstead offering practical family living close to excellent transport and schools. The house sits on a decent plot with a good-sized rear garden, private driveway and a garage — rare for central locations — giving useful outdoor and storage space.
Inside the layout is straightforward: lounge, kitchen to the rear, ground-floor cloakroom and three bedrooms with a family bathroom upstairs. The home is an average-sized property (approx. 933 sq ft) built in the mid-20th century and retains period touches like parquet flooring in the living room while presenting clear scope for updating to modern tastes and efficiency standards.
Location is a major asset: a short walk to Wanstead Underground Station (Central Line), Wanstead High Street amenities, and several well-regarded primary and secondary schools, making the house well suited to families. Note practical considerations: the property appears to lack wall insulation and dates from the late 1960s–1970s, so buyers should expect some energy-efficiency and modernisation work.
Overall this freehold house will appeal to buyers seeking a family home in a very affluent, well-connected neighbourhood with immediate outdoor space and future improvement potential. It is straightforward to move into with cosmetic work, but those wanting a fully modern, highly efficient home should budget for upgrades.
3 bedroom terraced house for sale in Mansfield Road, Wanstead, E11 — £750,000 • 3 bed • 1 bath • 926 ft²
3 bedroom house for sale in Rectory Crescent, Wanstead, E11 — £775,000 • 3 bed • 1 bath • 1041 ft²
3 bedroom terraced house for sale in Malcolm Way, Wanstead, E11 — £800,000 • 3 bed • 1 bath • 973 ft²
3 bedroom maisonette for sale in Redbridge Lane West, Wanstead, E11 — £750,000 • 3 bed • 2 bath • 1973 ft²
3 bedroom house for sale in Lonsdale Road, London, E11 — £775,000 • 3 bed • 2 bath • 1022 ft²
4 bedroom end of terrace house for sale in Preston Drive, Wanstead, E11 — £1,500,000 • 4 bed • 3 bath • 2804 ft²






































































