WN6 0AE - 6 bedroom detached house for sale in Wigan Road, Standish,…

View on Property Piper

6 bedroom detached house for sale in Wigan Road, Standish, WN6

Summary - 193 WIGAN ROAD STANDISH WIGAN WN6 0AE

6 bed 3 bath Detached

Period character with a 2024 extension and modern energy upgrades—ideal for large families.
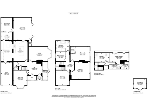
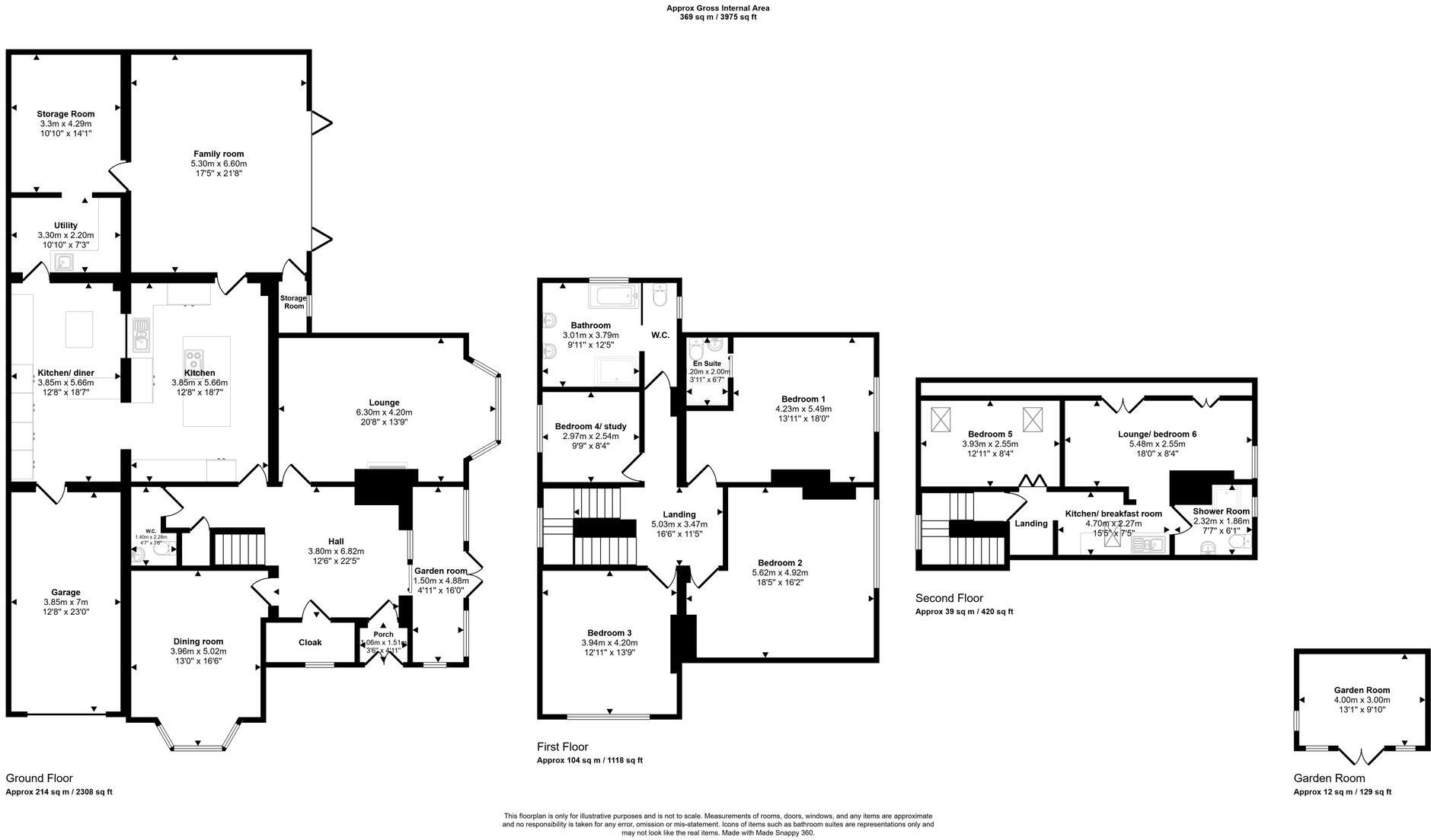
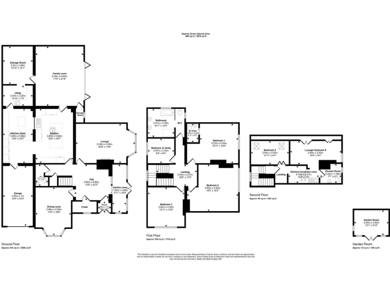
Gated six-bedroom detached period property with 3,975 sq ft total space
Back-to-bricks renovation (2023) plus 1,100 sq ft extension (2024)
Self-contained top-floor in-law suite with kitchen and bathroom
High-spec tech: air source heat pump, Cat6e wired network, EV charge
Triple glazing, A/C in multiple rooms, insulated garden office with power
South-facing garden, patio and large private plot (~0.29 acres)
Driveway parking for 10+ vehicles; motion-sensor lighting and bin stores
Leasehold: 999-year lease from 1932, £16 per annum; high council tax band
Set behind gated grounds on sought-after Wigan Road, this six-bedroom detached period home blends 1930s character with recent, high-spec remodelling. A comprehensive back-to-bricks renovation completed in 2023 and a 1,100 sq ft architect-designed extension in 2024 create expansive, flexible living across three floors — ideal for families or multigenerational households.

The ground floor centres on a grand family room with a roof lantern, porcelain tiles and bi-fold doors opening to a south-facing garden patio. High-spec finishes include solid oak parquet, granite worktops, integrated appliances, triple glazing and modern M&E: air source heat pump with A/C in multiple rooms, Cat6e wired network and EV charging.

Upstairs offers four principal bedrooms and a large four-piece bathroom; the top floor is a self-contained in-law suite with kitchen, bathroom and reception, or can provide two extra bedrooms. Outside, the private plot (~0.29 acres) includes a sunken lawn, patio, insulated garden office with heating and full connectivity, and parking for 10+ cars.

Practical points to note: the property is leasehold (999-year lease from 12 Nov 1932, £16 pa lease payment) and sits in a high council tax band. EPC rating C. This is a rare opportunity to buy a character home with modern performance and substantial additional space, but buyers should budget for the usual upkeep of a large, period property.

Property Details

Image Descriptions

Floorplan Description

Rooms

Textual Property Features

Target Audience

AI Tags

Detected Visual Features

EPC Details

Nearby Schools

Nearest Bars And Restaurants

,,,,}

Nearest General Shops

,,}

Nearest Grocery shops

,,}

Nearest Supermarkets

,,}

Nearest Religious buildings

,,}

Nearest Medical buildings

,,,}

Nearest Airports

,}

Nearest Leisure Facilities

,,,,}

Nearest Tourist attractions

,,}

Nearest Train stations

,,,,}

Nearest Bus stations and stops

,,,,}

Nearest Hotels

,,}

Tags

Local Market Stats

AirBnB Data

Similar Properties

Meta

High Res Images

Compatible Images

Low res Images

Thumbnails

Raw Images

High Res Floorplan Images

Compatible Floorplan Images

Low res Floorplan Images

FloorplanImages Thumbnail

Raw Floorplan Images