Chain-free three-bedroom family home with garden and parking.
Three double bedrooms across two floors
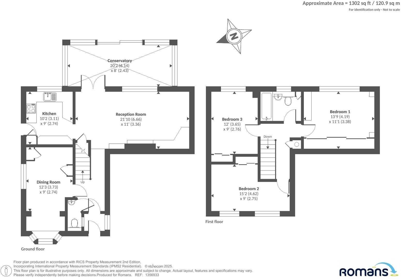
This three-double-bedroom semi-detached house in a quiet cul-de-sac offers practical family living in a desirable Farnborough neighbourhood. Offered chain free and on freehold tenure, the home is neutrally presented throughout with an inviting conservatory that looks over an enclosed rear garden.
Ground floor accommodation includes a large reception room, separate dining space, a bright fitted kitchen and a useful downstairs WC—useful for family life and entertaining. Off-street parking for two cars and gated side access to the garden add everyday convenience. The property footprint totals approximately 1,302 sq ft, giving comfortable living space across two storeys.
There is clear scope for light modernisation to personalise the home; the exterior appears well maintained but the conservatory and some internal areas may benefit from updating to suit contemporary tastes. The single family bathroom upstairs means bath-time routines may require coordination for larger households.
Location is a strong asset: a peaceful cul-de-sac within easy reach of shops, leisure facilities and green spaces, with fast broadband and excellent mobile signal. Local schools are close by but ratings are mixed, so buyers should check specific school performance if this is a priority. Overall, the property suits first-time buyers or families seeking a move-in-ready base with potential to modernise over time.
3 bedroom semi-detached house for sale in Nevada Close, Farnborough, Hampshire, GU14 — £500,000 • 3 bed • 1 bath • 1149 ft²
3 bedroom semi-detached house for sale in St. Davids Close, Farnborough, Hampshire, GU14 — £395,000 • 3 bed • 1 bath • 764 ft²
4 bedroom semi-detached house for sale in Thames Close, Farnborough, GU14 — £500,000 • 4 bed • 2 bath • 1400 ft²
3 bedroom detached house for sale in Woburn Avenue, Farnborough, Hampshire, GU14 — £475,000 • 3 bed • 2 bath • 1048 ft²
3 bedroom semi-detached house for sale in Pyestock Crescent, Farnborough, Hampshire, GU14 — £475,000 • 3 bed • 1 bath • 814 ft²
3 bedroom terraced house for sale in Barnes Close, Farnborough, Hampshire, GU14 — £350,000 • 3 bed • 1 bath • 483 ft²


















































































