E1 7AS - 2 bedroom apartment for sale in New Drum Street, Aldgate Ea…

View on Property Piper

2 bedroom apartment for sale in New Drum Street, Aldgate East, E1

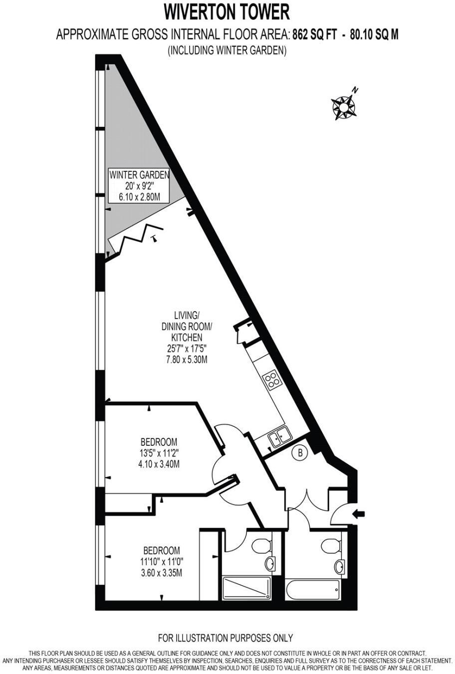
Summary - Wiverton Tower E1 7AS

2 bed 2 bath Apartment

**Standout Features:**
- Spacious 2-bedroom apartment with two bathrooms
- Open-plan living space with a Winter Garden
- High ceilings, bright interiors, and modern wooden flooring
- 24-hour concierge service and on-site gym
- Prime location near Aldgate East station (Zone 1)
- Excellent transport links and local amenities

**Potential Downsides:**
- Currently rented; viewings may need to be scheduled
- Above-average service charge and expensive council tax

Discover urban living at its finest with this beautifully appointed 2-bedroom apartment located in the sought-after Wiverton Tower in Aldgate. Spanning approximately 862 square feet, this bright and spacious unit offers a master bedroom with en-suite, a second double room, and a generous open-plan living area leading to a delightful Winter Garden, perfect for relaxation or entertaining. With modern finishes, under-floor heating, and air conditioning, your comfort is prioritized.

Enjoy a vibrant lifestyle with the convenience of a 24-hour concierge, on-site gym, and a stunning rooftop terrace. The cosmopolitan neighborhood is rich with bars, restaurants, and diverse amenities right at your doorstep, making it an ideal choice for professionals and families alike. The excellent transport links via Aldgate East station offer swift access to City hotspots.

While the property is currently tenanted, presenting an immediate rental opportunity, the above-average service charge and council tax may require consideration. This is your chance to secure a contemporary urban retreat—don’t miss out!

Property Details

Brochure Descriptions

Image Descriptions

Floorplan Description

Rooms

Textual Property Features

Detected Visual Features

EPC Details

Nearby Schools

Nearest Bars And Restaurants

,,,,}

Nearest General Shops

,,}

Nearest Grocery shops

,,}

Nearest Supermarkets

,,}

Nearest Religious buildings

,,}

Nearest Medical buildings

,,,}

Nearest Airports

,}

Nearest Leisure Facilities

,,,,}

Nearest Tourist attractions

,,}

Nearest Train stations

,,,,}

Nearest Bus stations and stops

,,,,}

Nearest Hotels

,,}

Tags

Local Market Stats

AirBnB Data

Similar Properties

Meta

High Res Images

Compatible Images

Low res Images

Thumbnails

Raw Images

High Res Floorplan Images

Compatible Floorplan Images

Low res Floorplan Images

FloorplanImages Thumbnail

Raw Floorplan Images