Ready-to-move-in flat ideal for getting onto the property ladder.
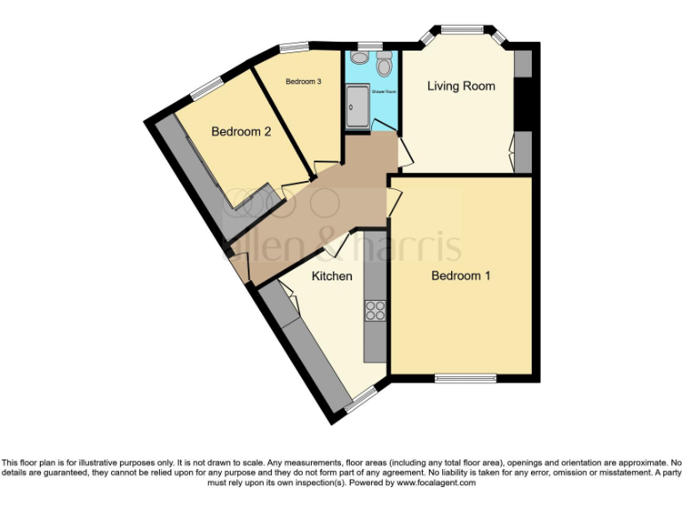
Top-floor three double bedrooms with spacious lounge
Gas central heating and double glazing throughout
Security entry and communal gardens; open outlook
Freehold tenure; council tax band affordable
Compact overall size (approx. 671 sq ft)
Single shower room only for three bedrooms
Very deprived local area — affects resale/rental prospects
Convenient transport links; near parks and major shopping centres
This well-presented top-floor flat offers three double bedrooms and a spacious lounge in a characterful red sandstone block. Gas central heating, double glazing and a secure entry system make it comfortable and ready to move into. The open outlook and communal gardens add light and a sense of space despite being an upper-floor apartment.
Positioned for easy travel, the flat is close to Paisley Road West transport links, Corkerhill station and quick access to the M77/M8. Local shopping at Braehead and Silverburn, plus green space at Pollok and Bellahouston parks, give everyday convenience and weekend options.
Practical buyers should note the property’s modest overall footprint (approx. 671 sq ft) and a single shower room serving three bedrooms. The listing sits in a very deprived local area — important for buyers to consider for long-term resale or rental expectations. Council tax is affordable and tenure is freehold, which can simplify ownership.
For first-time buyers this is a pragmatic entry to a three-bedroom home in a well-maintained building. Investors will see straightforward rental potential, though returns and demand will be influenced by the wider area profile. A cosmetic refresh of kitchen or bathroom could add value.
3 bedroom flat for sale in Stirrat Crescent, Paisley, PA3 — £115,000 • 3 bed • 1 bath • 702 ft²
3 bedroom flat for sale in Paisley Road West, Glasgow, G52 — £120,000 • 3 bed • 1 bath • 664 ft²
2 bedroom flat for sale in Bemersyde Avenue, Mansewood, G43 — £149,000 • 2 bed • 2 bath • 691 ft²
3 bedroom flat for sale in Flat 2/2, 439 Carntynehall Road, Carntyne, Glasgow, G32 — £115,000 • 3 bed • 1 bath • 741 ft²
2 bedroom flat for sale in Oatlands Square, Glasgow, Glasgow City, G5 — £175,000 • 2 bed • 2 bath • 850 ft²
3 bedroom ground floor flat for sale in 907 Mosspark Drive, Cardonald, Glasgow G52 3BZ, G52 — £105,000 • 3 bed • 1 bath • 800 ft²






































































