Newly refurbished three-bed family home with generous garden and parking for three-plus cars.
- Fully renovated throughout: wiring, plaster, flooring, kitchen and bathroom
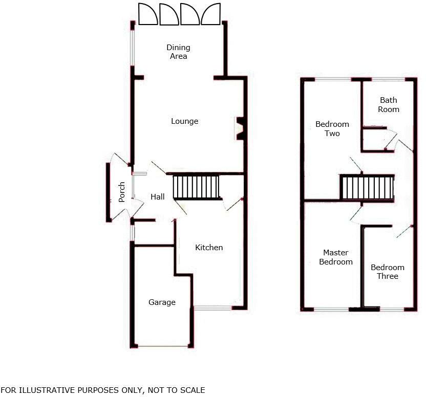
- Three bedrooms; single family bathroom plus ground-floor WC
- Private driveway for at least three cars and electric roller-shutter garage
- Large rear garden facing afternoon and evening sun, patio and outbuilding
- New log burner and bi-fold doors linking lounge to garden
- Glazing installed before 2002; partial cavity insulation assumed
- Built 1976–1982; buyers should confirm insulation/survey details
- Freehold; no recorded flood risk
Fully renovated and ready to move into, this three-bedroom family home combines contemporary styling with practical semi-rural living. The property has been comprehensively updated: new wiring, plastering, windows, radiators, carpets/flooring, a modern kitchen with integrated appliances and a new bathroom. Bi-fold doors open the lounge/dining area onto a sunny rear garden, and a new log burner adds a cosy focal point for cooler months.
Externally the home benefits from a private concrete-print driveway with space for at least three cars and an electric remote-controlled roller-shutter garage door. The generous rear garden faces afternoon and evening sun, has a patio for entertaining, lawn areas and a brick outbuilding with new electrics — useful storage or hobby space. Broadband speeds and mobile signal are reported as good, and the location is close to local schools and commuter links.
Practical points to note: the house has a single family bathroom and one WC on the ground floor, which may be limiting for larger households. The glazing was installed before 2002 and wall insulation is assumed partial cavity insulation, so further energy upgrades could reduce bills. The property’s build date (late 1970s–early 1980s) and some assumed insulation details mean buyers should confirm details during survey. Tenure is freehold and there is no recorded flood risk.
3 bedroom detached house for sale in Ironstone Road, Burntwood, WS7 — £375,000 • 3 bed • 2 bath • 926 ft²
3 bedroom semi-detached house for sale in Stafford Road, Newton Great Wyrley, WS6 — £235,000 • 3 bed • 2 bath
3 bedroom detached house for sale in Miles Meadow Close, Coppice Farm, Willenhall, WV12 — £270,000 • 3 bed • 1 bath • 797 ft²
3 bedroom detached house for sale in Robinson Road, Burntwood, WS7 — £285,000 • 3 bed • 3 bath • 905 ft²
2 bedroom semi-detached house for sale in Pooles Way, Burntwood, WS7 — £325,000 • 2 bed • 1 bath • 1012 ft²
3 bedroom semi-detached house for sale in Walsall Road, Great Wyrley, WS6 6AG, WS6 — £275,000 • 3 bed • 2 bath • 981 ft²






































































































































