New-build four-bedroom home on a large plot beside Foulridge Reservoir..
Exclusive gated development of five houses
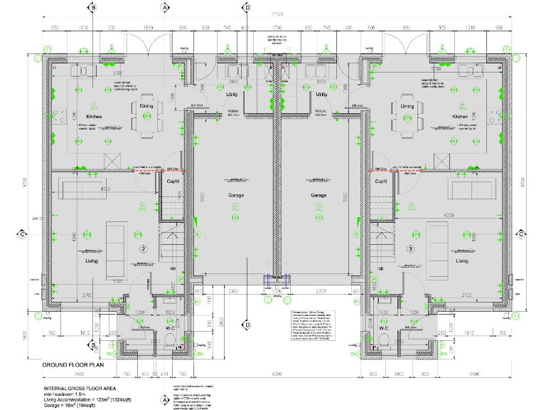
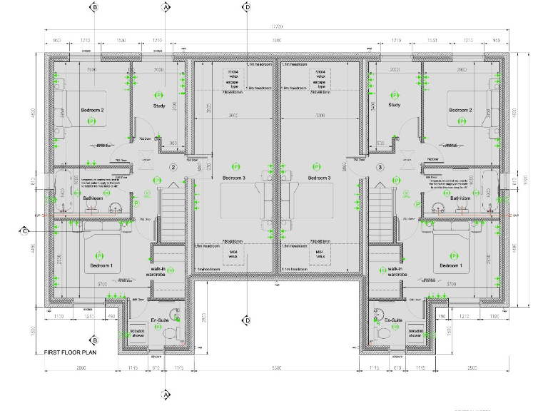
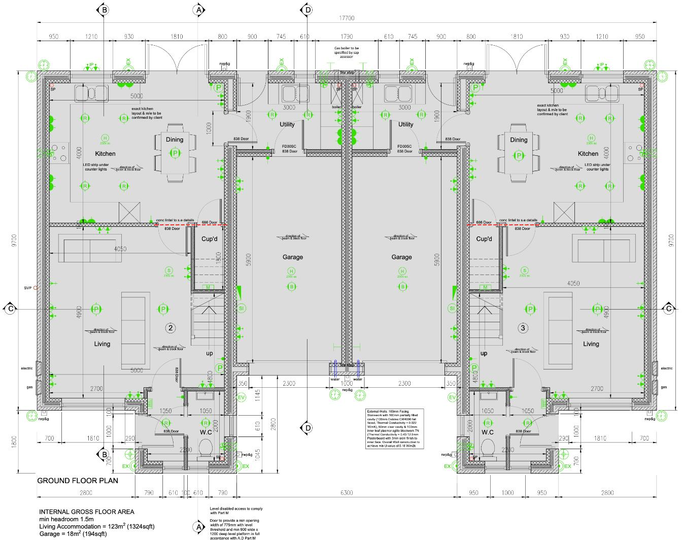
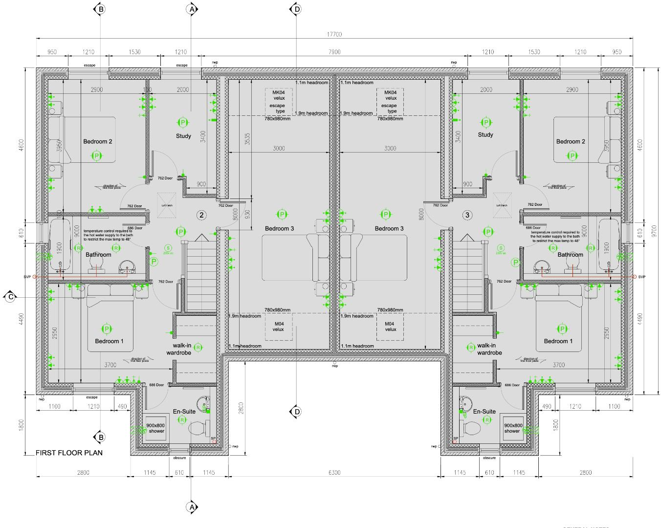
Set within a small, gated development beside Foulridge Reservoir and Lake Burwain, this new-build link-detached house (built 2026) offers four bedrooms, a master en-suite and a practical, family-focused layout. The home is specified with an Eastburn kitchen and quartz worktops, modern bathrooms, downstairs WC and underfloor heating across the ground floor for comfortable, efficient living. Solar panels and an electric vehicle charger reduce running costs and support low-emission motoring.
Externally the property is finished in coursed stone with cut-stone detailing and benefits from a large plot, private driveway and single garage. The location is semi-rural yet convenient: a short walk to village amenities and canal paths, with Colne and Burnley a short drive away for broader services and rail links.
Important practical points: broadband speeds are reported as very slow in the area, and the council tax band and final EPC rating will be confirmed on completion. The development is small and exclusive (five homes) so communal services are limited; purchasers should check timing and any estate management arrangements before completion.
This home will suit buyers seeking a modern, low‑maintenance property in a peaceful lakeside setting — families wanting nearby schools and outdoor access, or professionals needing good road links to surrounding towns. It offers turn-key specification with some eco benefits, but check connectivity and post-completion running costs during viewing.
6 bedroom detached house for sale in Victoria Gardens, Waterside, Darwen, BB3 — £515,000 • 6 bed • 4 bath • 2500 ft²
5 bedroom detached house for sale in Copperas Corner, Denholme, Bradford, BD13 — £550,000 • 5 bed • 2 bath • 849 ft²
4 bedroom detached house for sale in The Blackthorn, Cotton Meadows, Skipton Road, Barnoldswick, BB18 — £525,000 • 4 bed • 2 bath • 1458 ft²
4 bedroom detached house for sale in Banks Lane, Riddlesden, Keighley, BD20 — £425,000 • 4 bed • 2 bath • 1235 ft²
5 bedroom detached house for sale in Ilkley Road, Burley in Wharfedale, LS29 — £1,164,000 • 5 bed • 3 bath • 2133 ft²
5 bedroom house for sale in Ilkley Road, Burley in Wharfedale, LS29 — £1,000,000 • 5 bed • 3 bath • 1895 ft²






















































