Ideal starter property close to local schools and amenities.
- Built 2023 with NHBC guarantee
- EPC rating B; mains gas central heating
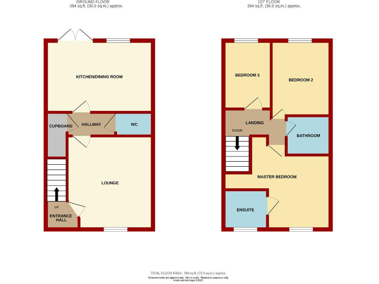
- Master bedroom with en-suite shower
- West-facing rear garden, low-maintenance landscaping
- Off-street parking for two cars at front
- Modest overall size; compact rooms throughout
- Small plot; limited private outdoor space
- Local area recorded as above-average crime
Built in 2023 and offered freehold with an NHBC guarantee, this compact three-bedroom semi delivers contemporary accommodation ideal for first-time buyers or young families. The principal bedroom has an en-suite, and the open-plan kitchen/diner opens via French doors to a west-facing paved patio and small lawn, creating an easy indoor–outdoor flow for evening sun.
Practical features include off-street parking for two cars, gas central heating with boiler and radiators, an EPC rating of B, and fast broadband availability. Interiors are presented in a modern, neutral finish with integrated appliances in the kitchen and useful understairs storage and cloakroom on the ground floor.
The plot is modest and maintained for low upkeep; the rear garden is landscaped with a shed and sleeper beds. There are no flood risks, and local schools and amenities are within walking distance. Note the property sits in a small-town fringe location within an area recorded as having above-average local crime, and the overall living space is relatively small compared with larger family homes.
This home suits buyers seeking a move-in-ready, low-maintenance property close to village services and good broadband, rather than those needing extensive outdoor space or a large footprint. Viewing will show a modern, efficient layout with straightforward ongoing maintenance needs.
4 bedroom detached house for sale in Manor Road, Newent, GL18 — £335,000 • 4 bed • 2 bath • 1012 ft²
3 bedroom detached house for sale in Meek Road, Newent, GL18 — £305,000 • 3 bed • 2 bath • 948 ft²
3 bedroom end of terrace house for sale in Buzzard Row, Newent, GL18 — £260,000 • 3 bed • 2 bath • 1152 ft²
2 bedroom semi-detached house for sale in Manor Road, Newent, GL18 — £219,995 • 2 bed • 1 bath • 614 ft²
2 bedroom semi-detached house for sale in Eagle Crescent, Newent, GL18 — £232,500 • 2 bed • 1 bath • 613 ft²
4 bedroom detached house for sale in Kestrel Close, Newent, GL18 — £425,000 • 4 bed • 2 bath • 1507 ft²


























































