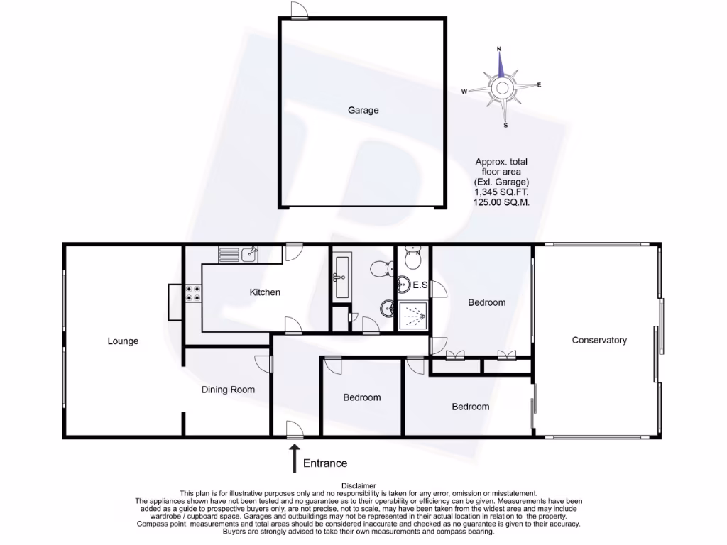
Spacious single-level home on a large plot with garage and garden.
- 1,345 sq ft single-level accommodation
- Sits on approximately 0.18 acre plot with water views
- Double garage plus multiple off-street parking spaces
- Large conservatory and generous living/dining rooms
- Oil-fired boiler and radiators (individual supply)
- Cavity walls as built; no known added insulation
- Constructed 1967–75; some modernisation likely required
- Council Tax Band F (expensive)
Set on a generous 0.18 acre plot beside West Hanningfield Reservoir, this single-storey link-detached bungalow offers 1,345 sq ft of practical living on one level. The layout includes a large living room, separate dining room, sizeable conservatory, three bedrooms (master with en suite) and a 15’3” kitchen — good proportions for comfortable, low‑step living. A double garage and extensive gravel forecourt provide parking for multiple vehicles.
The setting will suit buyers seeking peaceful village life: very low local crime, excellent mobile signal and fast broadband, nearby primary schools rated Good, and countryside walks on the doorstep. Water views across the reservoir are a genuine plus and the large, established garden offers privacy and scope for planting or landscaping improvements.
Practical points to note: heating is oil-fired (individual supply) with a boiler and radiators; walls are cavity as built with no known added insulation; glazing is double but install date is unknown. The house dates from the late 1960s/early 1970s and has traditional finishes rather than contemporary fittings, so some updating or refurbishment may be required to suit modern tastes. Council Tax Band F is expensive. Flood risk is low and tenure is freehold.
3 bedroom detached bungalow for sale in Marks Farm Lane, Rettendon Common, Chelmsford, CM3 — £700,000 • 3 bed • 3 bath • 1120 ft²
3 bedroom bungalow for sale in Church Road, West Hanningfield, CM2 — £625,000 • 3 bed • 2 bath • 1591 ft²
2 bedroom bungalow for sale in Ship Road, West Hanningfield, CM2 — £825,000 • 2 bed • 1 bath • 1371 ft²
3 bedroom detached bungalow for sale in The Common, East Hanningfield, CM3 — £550,000 • 3 bed • 1 bath • 1041 ft²
4 bedroom detached house for sale in Ship Road, West Hanningfield, CM2 — £995,000 • 4 bed • 4 bath • 3257 ft²
5 bedroom bungalow for sale in Lower Stock Road, West Hanningfield, Chelmsford, Essex, CM2 — £1,250,000 • 5 bed • 1 bath • 1899 ft²






























































































