Spacious three-bed Victorian terrace close to schools and town amenities.
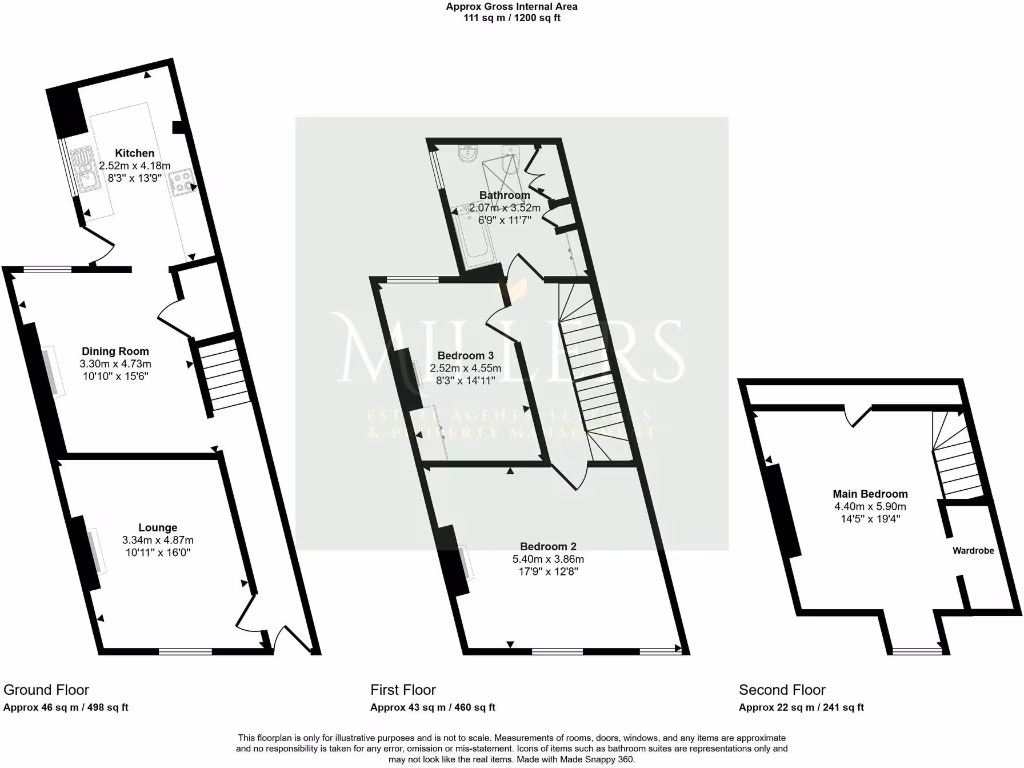
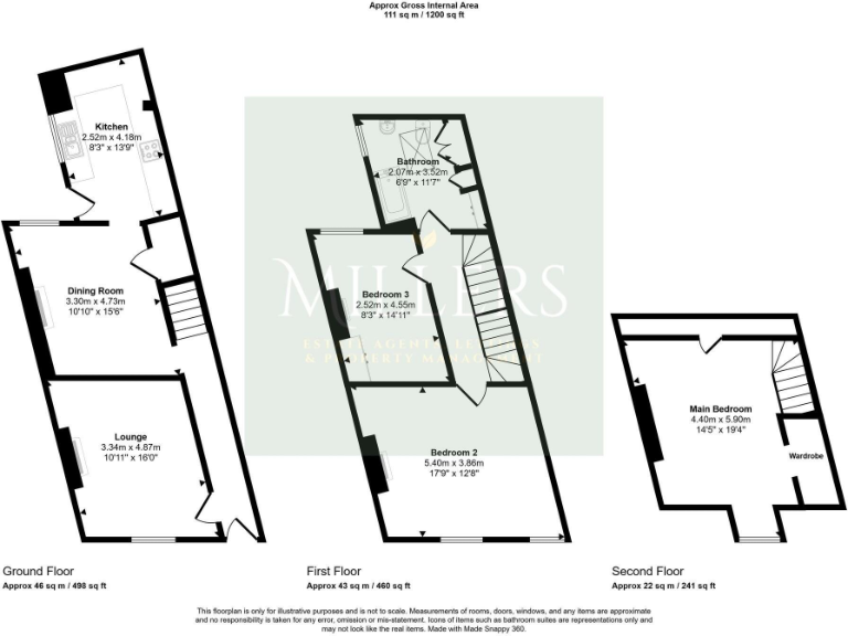
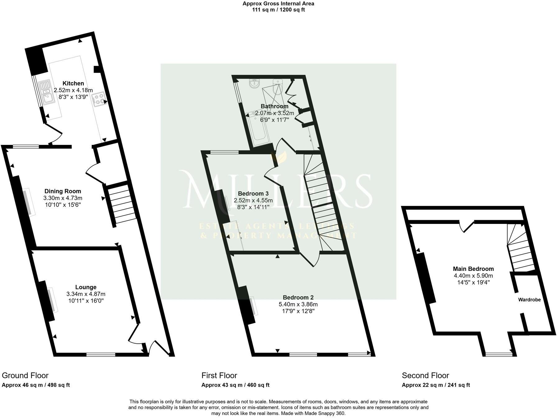
Three double bedrooms across three floors, high ceilings and period features
Set over three well-proportioned floors, this Victorian mid-terrace blends period character with practical updates. High ceilings, original fireplaces and generous room sizes give a sense of space uncommon for its plot, while the renovated farmhouse-style kitchen and a modern bathroom make it ready to live in.
The house suits families or buyers seeking a roomy town property close to amenities: schools, shops, medical services and transport are all within walking distance. The courtyard-style rear garden is low-maintenance and includes two useful outbuildings for storage, while the small shingled front garden provides kerb appeal.
Buyers should note a few constraints: the plot is small, the property has solid brick walls likely without insulation, and the EPC is D. There is a single bathroom and modest outdoor space, so anyone wanting a larger garden or top-tier energy efficiency should plan improvements. Freehold tenure, mains gas central heating and double glazing are practical positives for day-to-day living.
4 bedroom terraced house for sale in Salisbury Road, Cromer, NR27 — £370,000 • 4 bed • 2 bath • 1259 ft²
3 bedroom terraced house for sale in Mill Road, Cromer, NR27 — £275,000 • 3 bed • 1 bath • 733 ft²
3 bedroom terraced house for sale in Central Road, Cromer, NR27 — £270,000 • 3 bed • 2 bath • 969 ft²
3 bedroom semi-detached house for sale in Mill Road, Cromer, NR27 — £325,000 • 3 bed • 2 bath • 1012 ft²
3 bedroom semi-detached house for sale in Cliff Avenue, Cromer, NR27 — £400,000 • 3 bed • 2 bath • 1119 ft²
3 bedroom end of terrace house for sale in St. Margarets Lane, Cromer, NR27 — £310,000 • 3 bed • 1 bath • 1067 ft²










































































