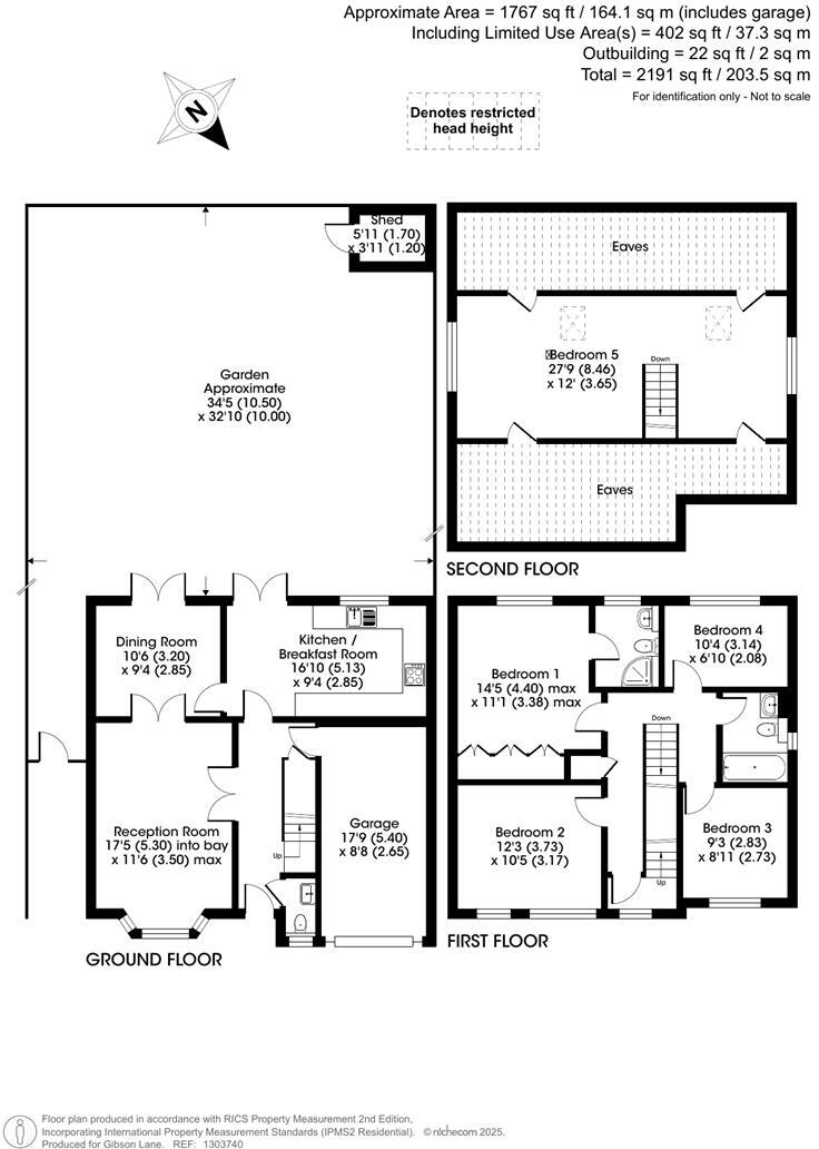
**Standout Features:**
- Spacious five-bedroom detached family home with over 1,700 sqft of living space
- South/west facing rear garden, perfect for outdoor entertaining
- Integral garage and off-street parking for three vehicles
- Potential for extensions (subject to planning permission)
- Located in a sought-after North Kingston area, with easy access to local schools, shops, and bus routes
- Council tax band G, EPC rating C
This impressive five-bedroom home in the desirable North Kingston area is a perfect haven for families seeking space and comfort. With its generous layout of two spacious reception rooms and a well-equipped kitchen/breakfast room that overlooks the beautifully maintained south/west facing garden, this property offers an ideal setting for family life and entertaining guests. The ample off-street parking and integral garage make it a practical choice for those with vehicles.
Though the property boasts considerable appeal, it also presents the exciting potential for extensions, allowing you to customize the home to your family's evolving needs. Its prime location provides easy access to Premier local schools, renowned shops, and vibrant amenities, creating a perfect community atmosphere.
With the tranquility of the nearby River Thames and Richmond Park, this home captures the essence of suburban living while still being close to urban conveniences. Don't miss your chance to secure this wonderful family abode—homes like this in such a coveted area are not available for long!
4 bedroom detached house for sale in Tangmere Grove, Kingston Upon Thames, KT2 — £1,200,000 • 4 bed • 2 bath • 15898 ft²
4 bedroom terraced house for sale in Barnfield Avenue, Kingston Upon Thames, KT2 — £975,000 • 4 bed • 2 bath • 2102 ft²
3 bedroom detached house for sale in Tangmere Grove, Kingston Upon Thames, KT2 — £870,000 • 3 bed • 2 bath • 958 ft²
5 bedroom detached house for sale in Eastbury Road, Kingston Upon Thames, KT2 — £1,495,000 • 5 bed • 3 bath • 2000 ft²
3 bedroom semi-detached house for sale in Dukes Avenue, Kingston Upon Thames, KT2 — £1,000,000 • 3 bed • 1 bath • 1139 ft²
5 bedroom detached house for sale in Riverside Close, Kingston Upon Thames, KT1 — £1,500,000 • 5 bed • 3 bath • 1900 ft²










































































