Bright, flexible 3/4 bedroom home with large garage, generous parking and close park access.
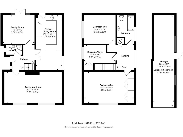
Spacious 1,640 sq ft family layout with flexible 3/4 bedroom accommodation
Full-width living room with dual bay windows and abundant natural light
Open-plan contemporary kitchen/diner with garden access
Double tandem garage plus multiple off-street parking spaces
Quiet, set-back position; walking distance to Lightwater Country Park
Built 1967–75; cavity walls assumed uninsulated and glazing install date unknown
Mains gas boiler and radiators; council tax described as expensive
Excellent mobile and fast broadband; very low local crime
This well-proportioned 3/4 bedroom detached home in Lightwater offers 1,640 sq ft of flexible family living arranged over two floors. The full-width living room with dual bay windows and large open-plan kitchen/diner create bright, sociable spaces ideal for everyday family life and entertaining. A separate dining room/study could serve as a fourth bedroom for growing households or guest use.
Externally the property sits set back from the road on a decent plot, providing privacy and a quiet outlook. Off-street parking for several vehicles and a double tandem garage are strong practical benefits for families with multiple cars, hobbies or storage needs. The rear garden is easily accessed from the kitchen/diner and is suitable for outdoor entertaining and children’s play.
Location is a key asset: Lightwater Country Park is only 0.2 miles away and the home is within walking distance of local amenities and schools rated Good–Outstanding. Commuters benefit from nearby mainline stations and good road links to the M3, M25 and A30. Broadband and mobile signal are strong, and the area is very affluent with very low local crime.
Important factual notes: the house was built in the late 1960s–1970s with cavity walls (assumed no insulation) and double glazing of unknown installation date. Heating is mains gas with a boiler and radiators. Council tax is described as expensive. These are practical considerations for buyers thinking about running costs and potential retrofit or improvement work.
In short, this is a comfortable suburban family home offering space, light and parking, with scope for modest improvements to increase energy efficiency and long-term running-cost savings.
3 bedroom detached house for sale in Aplin Way, Lightwater, Surrey, GU18 — £650,000 • 3 bed • 2 bath • 1714 ft²
3 bedroom detached house for sale in Keswick Drive, Lightwater, Surrey, GU18 — £600,000 • 3 bed • 2 bath • 1421 ft²
4 bedroom detached house for sale in Mount Pleasant Close, Lightwater, Surrey, GU18 — £650,000 • 4 bed • 1 bath • 1574 ft²
4 bedroom detached house for sale in MacDonald Road, Lightwater, Surrey, GU18 — £775,000 • 4 bed • 2 bath • 2167 ft²
3 bedroom detached house for sale in Osborne Drive, Lightwater, Surrey, GU18 — £785,000 • 3 bed • 2 bath • 1733 ft²
4 bedroom detached house for sale in Lightwater, Surrey, GU18 — £875,000 • 4 bed • 2 bath • 2159 ft²


















































































