Spacious period house with self-contained annex and park access.
Late 18th-century period home with abundant original features
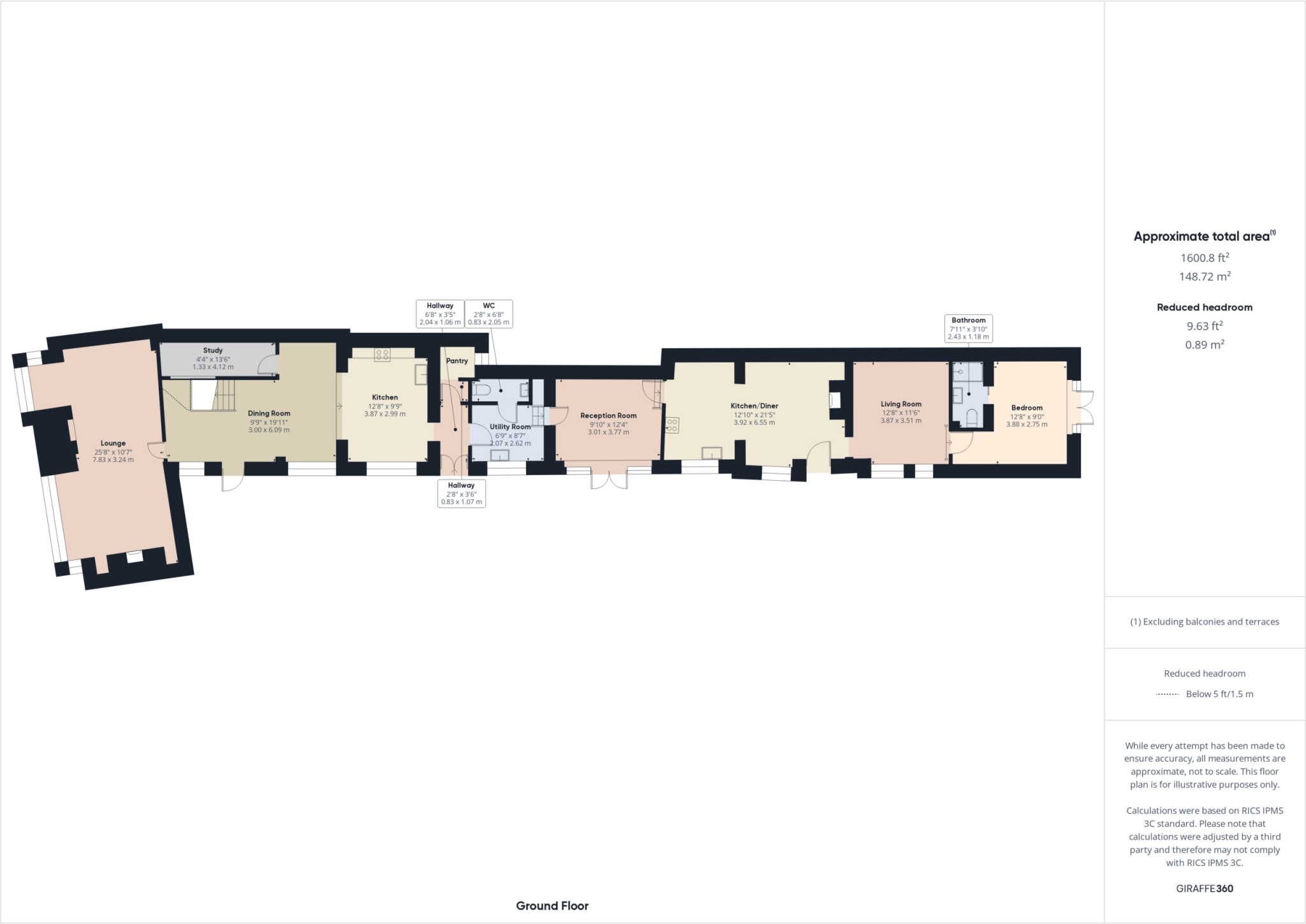
This late 18th-century semi-detached home combines generous period rooms with a self-contained 1–2 bedroom annex — ideal for multigenerational living or continued holiday-let income. Sitting on a large plot in Allestree Old Village, the property offers direct private access to Allestree Park, mature gardens with ponds, driveway parking with EV charging point, and a useful brick outbuilding (The Pigsty) with power, lighting and WC.
Inside, original features are prominent: exposed beams, inglenook fireplace, revealed brickwork and high ceilings in principal rooms. The main house includes a spacious lounge, open-plan living/dining/kitchen, utility and cloakroom, master bedroom with en-suite, three further bedrooms and a family bathroom with vaulted ceiling. The annex has a fitted kitchen, separate reception, bedroom with en-suite and independent underfloor heating controls.
Practical points to note: the property has double glazing and mains gas central heating but solid brick walls (likely no cavity insulation); EPC rating D and council tax in a high band may mean higher running costs. Built before 1900, the house will need ongoing period-property maintenance and any significant alterations will require appropriate consents. The brick outbuilding presents potential for a summerhouse, workshop or additional accommodation, subject to permissions.
This home will suit families seeking space, character and park-side living, or buyers wanting a primary residence with an income-generating annex. Viewing is recommended to appreciate the scale, garden and flexible layout offered by this unique period property.
4 bedroom detached house for sale in Park Lane, Allestree Park, Derby, DE22 — £795,000 • 4 bed • 1 bath • 3858 ft²
6 bedroom detached house for sale in Four Gables, Duffield Road, Allestree, Derby, DE22 — £1,175,000 • 6 bed • 4 bath • 2130 ft²
4 bedroom detached house for sale in Park View Close, Allestree, Derby, DE22 — £399,995 • 4 bed • 1 bath • 1710 ft²
3 bedroom detached house for sale in Duffield Road, Allestree, DE22 — £550,000 • 3 bed • 1 bath • 1200 ft²
5 bedroom detached house for sale in Kedleston Road, Allestree, DE22 — £600,000 • 5 bed • 2 bath • 1791 ft²
4 bedroom detached house for sale in Woodlands Road, Allestree, DE22 — £600,000 • 4 bed • 3 bath • 3883 ft²










































































































































































































































































