Low-maintenance two-bedroom park home on the Kent coast, exclusive for over-45s..
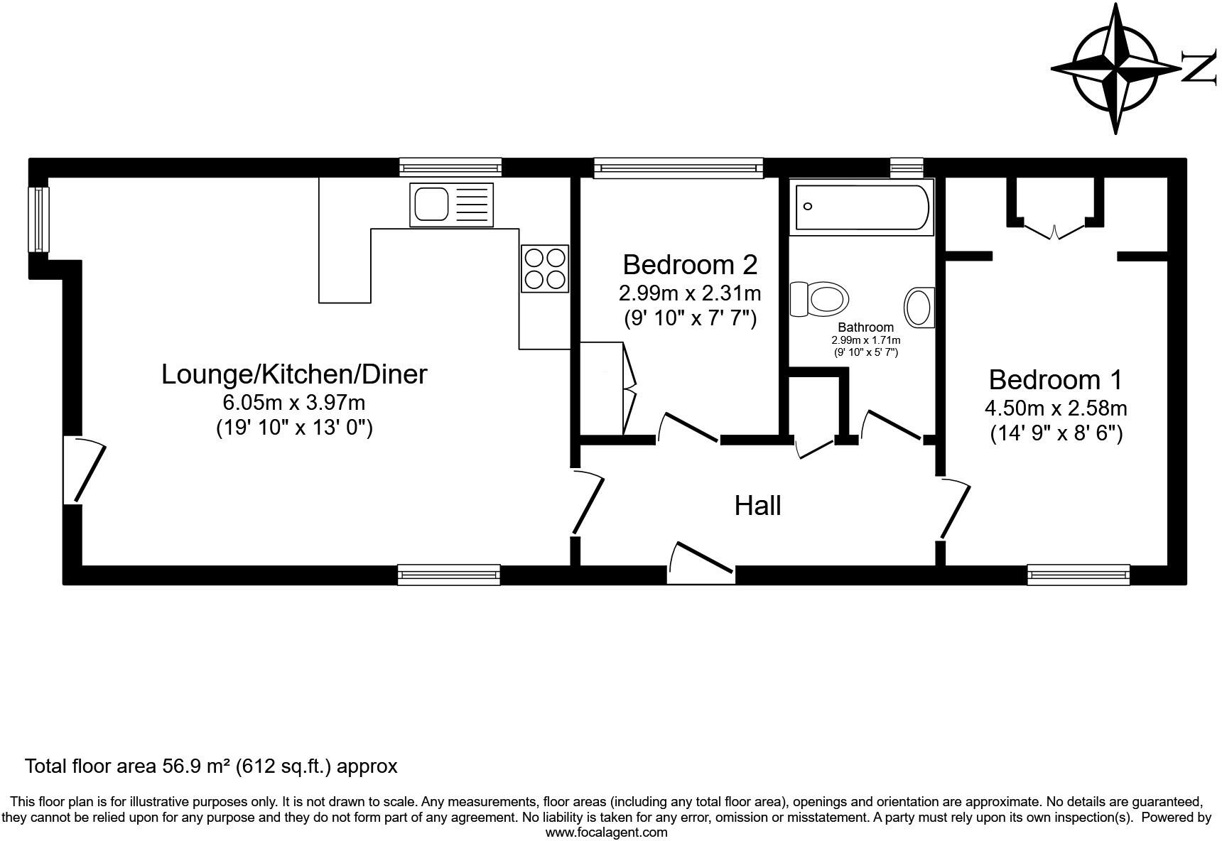
Detached 45'x14' Hayden Classic park home, 2 bedrooms
Gated, pet-friendly development exclusive to over-45s
Onsite leisure: indoor pool, coffee lounge and tea gardens
Modern kitchen with integrated appliances; electric fireplace in living room
Driveway, garden space and external shed; low-maintenance grounds
Virtual freehold arrangement; park homes usually not mortgageable
Site fee £270.53/month; ground rent £3,246.36/year (reviewed annually)
Part-exchange available to simplify moving
Set within a gated, well-kept residential park on the North Kent coast, this detached 45'x14' Hayden Classic park home suits buyers aged 45+ seeking low-maintenance, bungalow-style living. The bright living room, modern u-shaped kitchen with integrated appliances, two fitted bedrooms and a bathroom with tub and showerhead make it ready to occupy. Outside there is a driveway, shed and a modest garden for pot plants and easy outdoor seating.
Residents benefit from onsite leisure facilities including an indoor pool, coffee lounge and tea gardens, plus direct access to coastal walks and nearby seaside towns. The development is pet friendly and offers a part-exchange option to simplify moving. Council Tax is Band B, and flood risk is very low, adding to the appeal for retirees wanting tranquillity and accessibility to amenities.
Important practical points: this home sits on a virtual freehold arrangement for park homes and these properties are typically not mortgageable — buyers should consult a solicitor. Site fees are currently £270.53 per month and the stated ground rent equates to £3,246.36 annually; fees are reviewed yearly and may rise with RPI. Prospective purchasers should check park rules and the Mobile Homes Act 2013 implications before committing.
Overall this is a tidy, modern park home offering seaside living with on-site leisure and easy upkeep. It will particularly suit downsizers or retirees wanting an active coastal location, but budget for ongoing site and ground rent charges and verify finance options before viewing.
2 bedroom park home for sale in Herne Bay, Kent, CT6 — £274,000 • 2 bed • 2 bath • 840 ft²
2 bedroom park home for sale in Reculver, Herne Bay, Kent, CT6 — £250,000 • 2 bed • 2 bath • 840 ft²
2 bedroom park home for sale in Herne Bay, Kent, CT6 — £330,000 • 2 bed • 2 bath • 800 ft²
2 bedroom park home for sale in Herne Bay, Kent, CT6 — £260,000 • 2 bed • 1 bath • 630 ft²
2 bedroom park home for sale in Cherry Blossom Drive, Herne Bay, CT6 — £269,000 • 2 bed • 2 bath • 828 ft²
2 bedroom park home for sale in Herne Bay, Kent, CT6 — £280,000 • 2 bed • 2 bath • 800 ft²










































































