Freehold plot with consent for two bungalows and garages, services nearby.
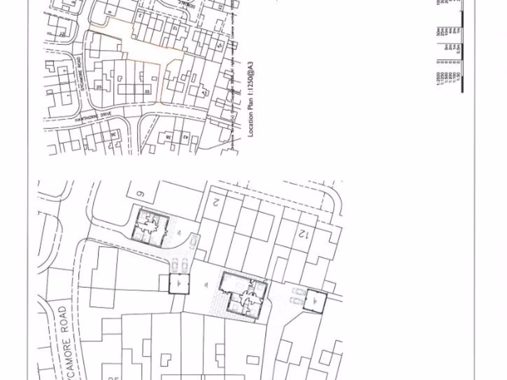
Outline planning granted F/YR24/0626/O for two detached bungalows
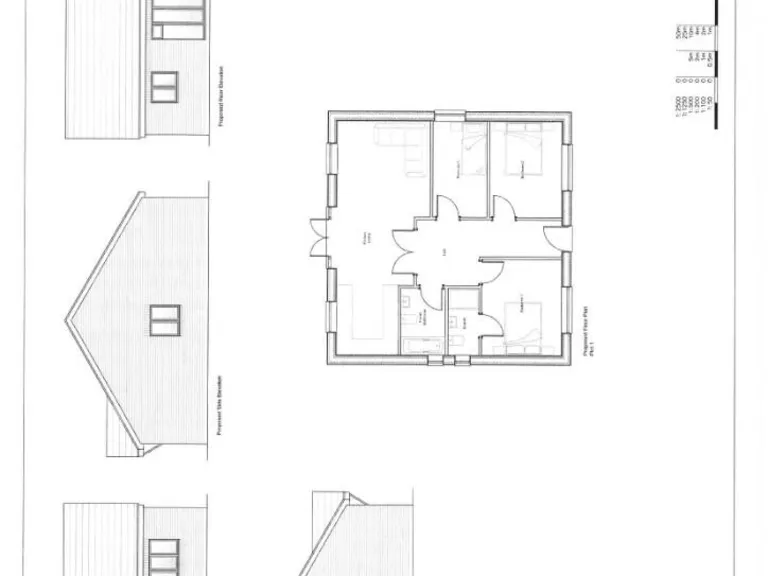
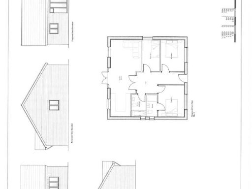
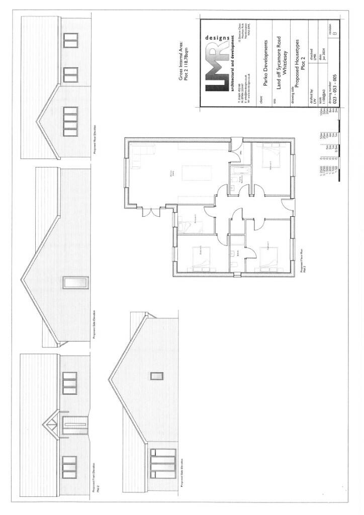
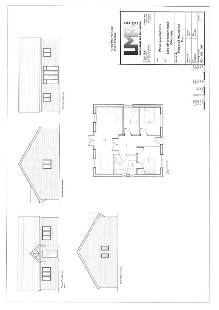
A cleared building plot in a sought-after pocket of Whittlesey with outline planning already granted (F/YR24/0626/O) for two detached bungalows. The consent covers one three-bedroom bungalow and one two-bedroom bungalow, each with a detached double garage and separate vehicle access; foul and storm drainage is on site and main services are nearby, simplifying next steps to reserved matters and construction.
The site is offered freehold and sits in a quiet residential setting close to good local schools and basic amenities, with excellent mobile signal and fast broadband — practical strengths for owner-occupiers or a small developer looking for a quick-to-deliver scheme. The plot size is generous enough to provide private gardens and driveways as shown on the site plan and marketing images.
Buyers should note this is outline planning only: full (reserved matters) approval and building regulation consent are still required before construction. The surrounding area scores high on local deprivation indices, which may affect long-term rental values and resale comparables; crime is reported as average. Prospective purchasers should carry out their own due diligence on site surveys, build costs and local market dynamics before exchange.
This opportunity suits a developer or investor who wants a straightforward plot with planning consent in place, or an owner-builder prepared to take the project through to completion. With services nearby and drainage in situ, the plot reduces some initial infrastructure work and accelerates the route to a finished scheme.
Land for sale in Land At Eastrea Road, Whittlesey, Peterborough, Cambridgeshire, PE7 2AJ, PE7 — £350,000 • 1 bed • 1 bath
Land for sale in Whittlesey Road, March, PE15 — £135,000 • 1 bed • 1 bath
Plot for sale in Shrewsbury Avenue, Peterborough, PE2 — £145,000 • 1 bed • 1 bath
Land for sale in Whittlesey Road, March, PE15 — £135,000 • 1 bed • 1 bath
Plot for sale in Scotney Street, Peterborough, PE1 — £450,000 • 1 bed • 1 bath • 2066 ft²
Land for sale in Mouth Lane, Guyhirn, PE13 — £485,000 • 1 bed • 1 bath • 17728 ft²






























