Affordable city-entry flat with refurbishment potential and generous kitchen space.
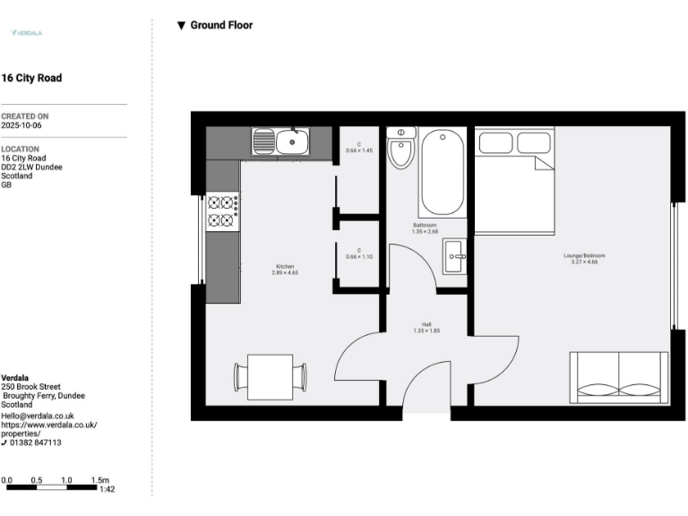
Ground-floor one-bedroom flat, approx. 366 sq ft
A ground-floor one-bedroom flat in central Dundee offering very affordable entry to city living. The main room combines living and sleeping space and retains original timber flooring and a large front window that brings in natural light. The rear kitchen is unusually generous for the size and includes room to dine with a view over the shared garden.
The building is a Victorian tenement with period character but the flat needs renovation throughout. The property has a current EPC rating of F and will require modernisation to meet contemporary standards. Despite this, the freehold tenure, excellent mobile signal and fast broadband make it practical for someone planning a targeted refurbishment or a buy-to-let conversion.
Location is a major strength: under a mile from the train station, close to busy bus routes, shops, cafés and green spaces. The communal rear garden adds useful outdoor space on a compact plot. Council tax is very cheap, and the compact footprint keeps running costs low.
Be clear: the flat is small (approx. 366 sq ft), sits in a very deprived neighbourhood and needs work to bring it up to modern living standards. It will appeal most to budget-conscious first-time buyers, investors seeking a low-price refurb, or someone wanting a city-base with scope to add value.
1 bedroom flat for sale in Court Street, Dundee, DD3 — £65,000 • 1 bed • 1 bath • 625 ft²
1 bedroom flat for sale in 30e Springhill, Dundee, DD4 6HP, DD4 — £59,000 • 1 bed • 1 bath • 452 ft²
1 bedroom flat for sale in Grays Lane, Dundee, DD2 — £75,000 • 1 bed • 1 bath • 679 ft²
1 bedroom flat for sale in Strathmartine Road, Dundee, DD3 — £60,000 • 1 bed • 1 bath • 527 ft²
2 bedroom flat for sale in Scott Street, Dundee, DD2 — £95,000 • 2 bed • 1 bath • 476 ft²
Studio flat for sale in Caldrum Street, Dundee, DD3 7, DD3 — £45,000 • 1 bed • 1 bath






























