Moments from the seafront with private garden and multiple parking spaces.
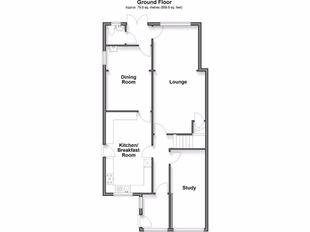
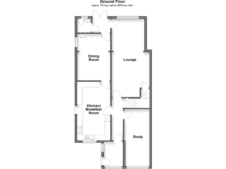
Five bedrooms with lounge, dining room and separate study
This five-bedroom semi-detached house in Selsey offers bright, well-proportioned living spaces and a large modern kitchen ideal for family life or holiday rental. The property sits a short walk from the seafront and benefits from a private driveway with room for multiple cars and a decent, low-maintenance rear garden.
Internally the house presents practical, contemporary accommodation across approximately 1,167 sq ft, including a long lounge, separate dining room, study and ground-floor cloakroom. Double glazing was upgraded after 2002 and heating is by a mains gas boiler with radiators. Built in the late 1960s/early 1970s, the structure is typical of its era and provides scope for cosmetic updating and energy-efficiency improvements (cavity walls currently assumed uninsulated).
Notable positives include the coastal location, generous room count and off-street parking. Buyers should note local crime levels are reported as high and the wider area demographics skew older; the overall plot is decent but the internal size is modest for five bedrooms. This house suits families wanting seaside access, landlords seeking a rental opportunity, or purchasers prepared to invest in updating and insulation to improve comfort and running costs.
Practical matters: tenure is freehold and flooding risk is low. Interested buyers must verify measurements, services, and any planning or building consents for past changes before purchase.
3 bedroom detached house for sale in Orbit Gardens, Selsey, West Sussex, PO20 — £395,000 • 3 bed • 2 bath • 590 ft²
3 bedroom semi-detached house for sale in East Bank, Selsey - Stunning Family Home in Quiet Cul-de-Sac Near the Seafront, PO20 — £385,000 • 3 bed • 1 bath • 1166 ft²
3 bedroom semi-detached house for sale in Horse Field Road, Selsey, PO20 — £375,000 • 3 bed • 1 bath • 1102 ft²
4 bedroom detached house for sale in Warner Road, Selsey, Chichester, West Sussex, PO20 — £650,000 • 4 bed • 2 bath • 1264 ft²
5 bedroom detached house for sale in Vincent Road, Selsey, PO20 — £650,000 • 5 bed • 3 bath • 2528 ft²
5 bedroom chalet for sale in Grove Road, Selsey, PO20 — £545,000 • 5 bed • 3 bath • 2110 ft²






































































