**Standout Features:**
- 2-bedroom, ground floor flat with a private patio and communal gardens
- 40% shared ownership leasehold, with 80 years remaining on the lease
- Allocated parking space
- Open-plan living area
- Walking distance (0.4 miles) to Redbridge Park and Ride
- Local schools rated "Good" by Ofsted
**Concerns:**
- Need for mortgage lenders to assess the short lease, which may affect financing options
- Above-average crime rating in the area
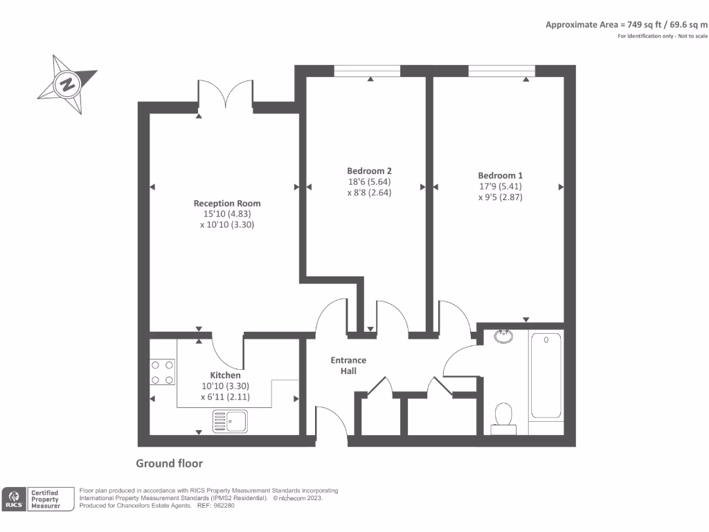
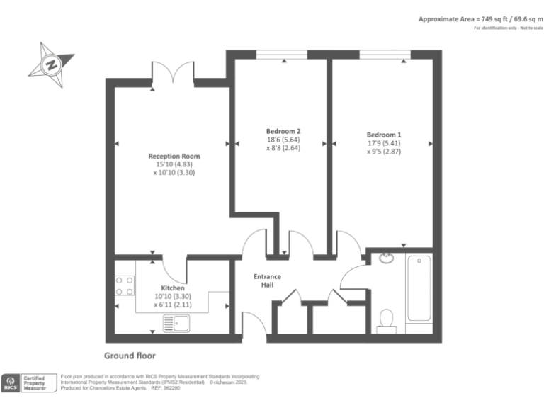
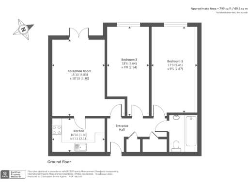
Discover this charming and modern ground floor apartment, perfect for first-time buyers or investors looking to capitalize on a growing market. With two cozy bedrooms and a well-designed family bathroom, the property features an inviting open-plan reception area that flows effortlessly to your own private patio—ideal for enjoying outdoor space in the communal gardens.
Situated in a culturally diverse urban area, this home is conveniently located just a short distance from public transport hubs providing easy access to Oxford. The service charge is manageable at £96.21 per month, and with an allocated parking space, you'll enjoy the comfort and convenience of off-street parking.
While the property does present a challenge with only 80 years left on the lease, it’s a wonderful opportunity to establish yourself in a vibrant community with excellent local amenities and highly-rated schools nearby. Don't miss out on this affordable entry into the housing market; schedule your viewing today!
2 bedroom apartment for sale in Egrove Close, Oxford, OX1 — £90,000 • 2 bed • 1 bath • 679 ft²
2 bedroom flat for sale in New Hinksey, Oxford, OX1 — £280,000 • 2 bed • 1 bath • 749 ft²
2 bedroom flat for sale in Reliance Way, Oxford, Oxfordshire, OX4 — £112,000 • 2 bed • 1 bath • 680 ft²
2 bedroom flat for sale in East Oxford, Oxford, OX4 — £125,800 • 2 bed • 2 bath • 667 ft²
2 bedroom apartment for sale in Armstrong Road, Littlemore, Oxford, OX4 — £140,000 • 2 bed • 2 bath • 800 ft²
1 bedroom flat for sale in Greater Leys, Oxford, OX4 — £102,500 • 1 bed • 1 bath • 510 ft²










































