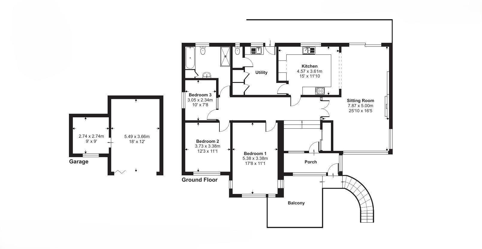
**Standout Features:**
- Spacious detached bungalow with 3 bedrooms
- Generous living room with river and countryside views
- Modern kitchen with integrated appliances and breakfast bar
- Large gardens with terraced lawns and stunning views
- Integral garage and workshop area with conversion potential
- Chain-free and freehold tenure
- Excellent mobile signal and fast broadband
- Close proximity to local amenities and Barnstaple town
**Summary:**
Discover this remarkable detached bungalow nestled in the serene Sticklepath area, perfect for families or those seeking a peaceful retreat. With 1,013 square feet of living space, this home showcases mid-century modern charm, highlighted by its stunning stone cladding and large windows that welcome abundant natural light. The spacious living room features a picturesque view of the River Taw, while the well-appointed kitchen boasts quality Howdens fixtures and integrated appliances, poised for entertaining.
This property sits on a striking double plot, offering ample outdoor space that includes terraced gardens and various sun terraces to enjoy the captivating surroundings. The sizeable garage and workshop present excellent renovation opportunities, whether for additional living space or a home office, subject to planning consent. Although the home could benefit from some modernization, its exceptional location provides the perfect canvas for your dream renovation.
Local amenities, including schools rated 'Good' and 'Outstanding,' shops, and eateries are just a stone's throw away, with the vibrant Barnstaple town center only a mile away. Enjoy breathtaking views and a relaxing lifestyle while envisioning the potential this unique property holds. Don't miss out on this exceptional opportunity; schedule a viewing today!
2 bedroom bungalow for sale in Crescent Avenue, Sticklepath, Barnstaple, EX31 — £360,000 • 2 bed • 2 bath • 1224 ft²
3 bedroom bungalow for sale in Philip Avenue, Barnstaple, EX31 — £459,950 • 3 bed • 2 bath • 1283 ft²
4 bedroom detached house for sale in Cleave Road, Sticklepath, Barnstaple, EX31 — £500,000 • 4 bed • 2 bath • 1629 ft²
3 bedroom detached bungalow for sale in Westfield Avenue, Sticklepath, Barnstaple, Devon, EX31 — £350,000 • 3 bed • 2 bath • 1531 ft²
3 bedroom detached house for sale in Cleave Road, Sticklepath, Barnstaple, Devon, EX31 — £425,000 • 3 bed • 2 bath • 1474 ft²
3 bedroom detached bungalow for sale in Manor Close, Sticklepath, Barnstaple, EX31 — £365,000 • 3 bed • 1 bath • 1440 ft²


































































































































































