**Standout Features:**
- **Guide Price:** £10,000
- **Location:** Bayley Croft Development, Willaston, CW5
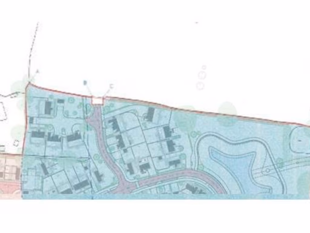
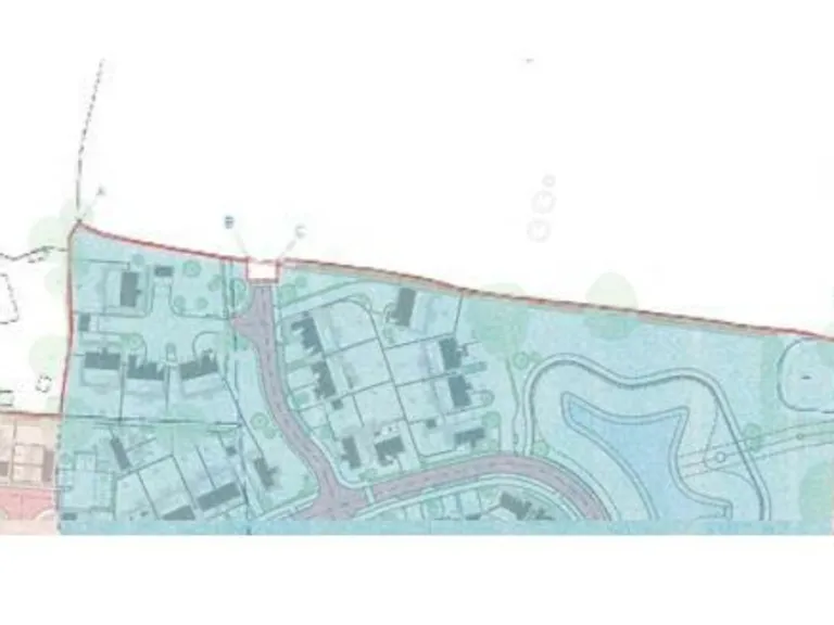
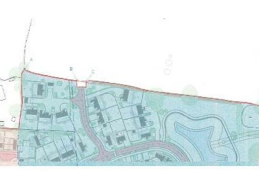
- **Potential Development:** Speculative ransom strip for future access
- **Setting:** Surrounded by open farmland in a quiet cul-de-sac
- **Community Amenities:** Close to primary schools, local shops, farm shop, and recreational facilities
- **Transport Links:** Easy access to M6 motorway and Crewe Station, with HS2 improvements underway
This enticing plot of land offers a unique opportunity in the desirable Bayley Croft Development of Willaston. Priced at a guide of just £10,000, this potentially valuable ransom strip, located at the end of a cul-de-sac, may serve as future access to adjacent fields, presenting options for development. The tranquil, suburban setting features delightful views of open farmland and mature trees, ensuring a serene environment ideal for a bespoke residence.
Willaston, known for its thriving community and wealth of local amenities, boasts excellent primary education options, charming village shops, and a farm shop just a stroll away. With Nantwich town and the M6 motorway easily accessible, this location combines peaceful living with connectivity to larger urban conveniences. Additionally, the plot's low crime rate and affluent surroundings make it an appealing option for families or investors looking to capitalize on future development opportunities. Don't miss out on this rare chance to secure land in a sought-after area!
Land for sale in Building Plot, Magpie Lane, Willaston, Nantwich, CW5 — £100,000 • 1 bed • 1 bath
Land for sale in Holmes Chapel Road, Middlewich, CW10 — £200,000 • 1 bed • 1 bath • 7435 ft²
Land for sale in Windmill Lane, Buerton, CW3 — £125,000 • 1 bed • 1 bath • 8568 ft²
Farm land for sale in Land adjoining Betley Court Farm - Lot 1 , CW3 — £260,000 • 1 bed • 1 bath
Land for sale in Building Plot, Main Road, Shavington, Crewe, CW2 — £200,000 • 1 bed • 1 bath
Land for sale in Land At Regency Walk, Middlewich, CW10 9NY, CW10 — £150,000 • 1 bed • 1 bath • 16117 ft²


















































