Newly renovated high ceiling apartment close to transport and shops.
Newly renovated kitchen and bathroom with integrated appliances
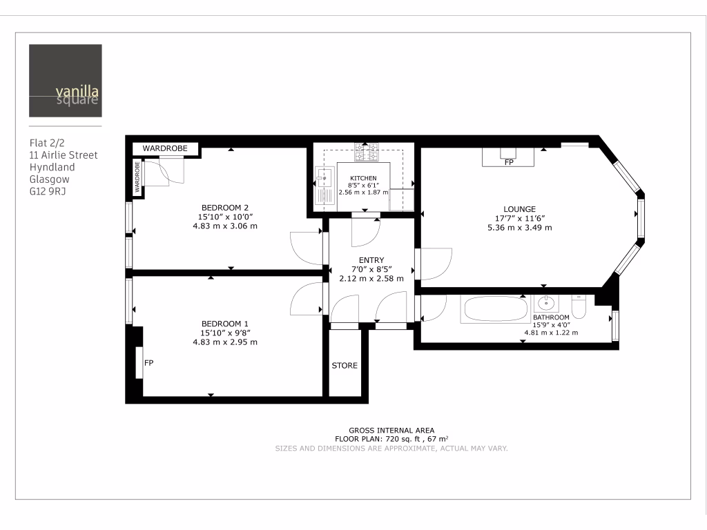
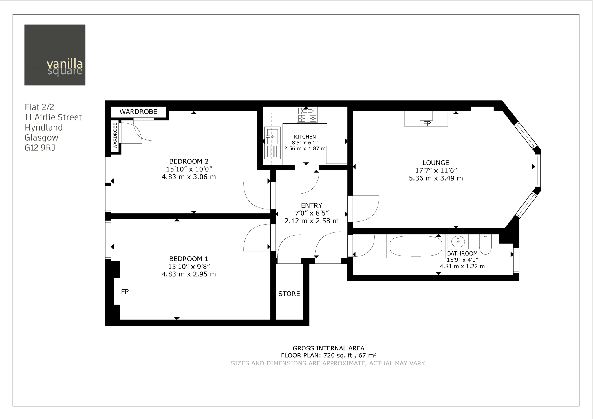
This newly renovated two-bedroom flat combines Victorian character with contemporary finishes, ideal for a first-time buyer seeking a turn-key West End home. High ceilings, a bay-windowed living room and period cornicing give the apartment genuine charm while the fitted kitchen and modern bathroom make daily life straightforward.
Both double bedrooms face the leafy rear gardens, offering a quieter aspect away from the main road. At about 720 sq ft the layout feels comfortable rather than expansive; room sizes are moderate. Gas central heating, double glazing and well-maintained communal areas add practical benefits.
Practical considerations are clear: parking is on-street by permit, and the building sits in an area recorded as more deprived than nearby neighbourhoods. That said, excellent transport links, fast broadband, and good local amenities make this flat a strong urban starter property or rental proposition. EER band C reflects reasonable energy performance.
Overall, the flat presents an easy-to-live-in home with period features and recent upgrades. It will suit buyers who prioritise location, character and low immediate maintenance over extensive internal space.
2 bedroom flat for sale in Dowanhill Street, Flat 2/3, Dowanhill, Glasgow, G11 5HE, G11 — £199,000 • 2 bed • 1 bath • 743 ft²
2 bedroom flat for sale in 3/1 28 Polwarth Street, Hyndland, G12 9TX, G12 — £359,000 • 2 bed • 1 bath • 1206 ft²
2 bedroom flat for sale in 3/1 44 Airlie Street, Hyndland, G12 9TR, G12 — £235,000 • 2 bed • 1 bath • 743 ft²
2 bedroom flat for sale in 0/2 7 Dudley Drive, Hyndland, G12 9SE, G12 — £199,000 • 2 bed • 1 bath • 732 ft²
2 bedroom apartment for sale in White Street, Partick, Glasgow, G11 — £195,000 • 2 bed • 1 bath • 606 ft²
2 bedroom flat for sale in 0/2 40 Airlie Street, Hyndland, G12 — £235,000 • 2 bed • 1 bath • 683 ft²


































































































