Well-connected fourth-floor flat with parking and balcony near stations.
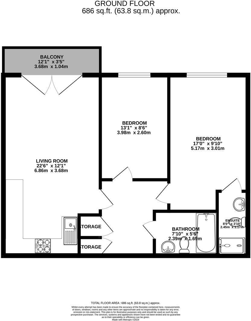
Two double bedrooms with en‑suite to the principal bedroom
Set on the fourth floor of the popular Walsham Court development, this modern two-bedroom apartment offers practical, comfortable living for a first-time buyer or buy-to-let investor. The principal bedroom includes an en-suite, and the open-plan lounge flows onto a small balcony that brings in daylight and fresh air. Allocated off-street parking and lift access make everyday life straightforward.
The layout is efficiently zoned across approximately 686 sq ft, with built-in storage off the entrance hall and a fully fitted contemporary kitchen with integrated appliances. Transport links are a clear strength: West Ruislip and Ickenham stations are within easy reach and the A40/M40/M25 network is close by, making commuting and airport access convenient.
Practical points to note: the property is leasehold with around 117 years remaining and no private garden—outdoor space is limited to the balcony. The outlook is towards the communal parking/communal areas rather than open countryside or river views. Council tax is moderate and the area is very affluent, serving multi-ethnic professionals and families.
Overall, this apartment suits buyers seeking a modern, low-maintenance home close to transport and local amenities, or investors looking for a steady rental proposition in a well-connected suburban location.
2 bedroom flat for sale in Perkins Gardens, Ickenham, UB10 — £415,000 • 2 bed • 2 bath • 624 ft²
2 bedroom apartment for sale in Perkins Gardens, Ickenham, UB10 8FQ, UB10 — £385,000 • 2 bed • 2 bath • 813 ft²
2 bedroom apartment for sale in Halton House, Kenmare Close, Ickenham, UB10 — £350,000 • 2 bed • 2 bath • 682 ft²
2 bedroom flat for sale in Walsham Court, Perkins Gardens, Ickenham, UB10 — £400,000 • 2 bed • 2 bath • 674 ft²
2 bedroom apartment for sale in Perkins Gardens, Ickenham, UB10 — £375,000 • 2 bed • 2 bath • 703 ft²
2 bedroom flat for sale in Heacham Avenue, Ickenham, UB10 — £465,000 • 2 bed • 2 bath • 1002 ft²










































