**Standout Features:**
- Spacious two-bedroom ground floor apartment with private entrance
- Generously sized lounge flooded with natural light
- Modern kitchen with integrated appliances and ample storage
- Private garage with parking space in front
- Surrounded by well-maintained communal gardens and nearby woodland
- Close to Brentwood Station and highly regarded schools
**Potential Concerns:**
- Leasehold tenure may require future consideration for buyers
- Average-sized property may not appeal to those needing larger spaces
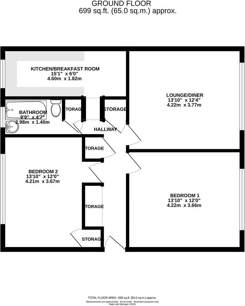
Embrace comfortable living in this bright and spacious two-bedroom ground floor apartment, ideally located just minutes from Brentwood Station for superb transport links into London. The well-designed interior features a generous lounge that welcomes natural light through a large window, complemented by a modern kitchen equipped with integrated appliances and plenty of storage. Both double bedrooms are comfortably sized, making it ideal for families or professionals seeking convenience without compromising space.
Outside, enjoy the benefits of a private garage and parking, all within the serene setting of well-kept communal gardens and enchanting woodland views. Just less than a mile from Brentwood High Street and within proximity to highly rated schools, this apartment perfectly balances urban access with suburban tranquility. Set in an affluent area, this property presents an excellent opportunity for first-time buyers or investors. Act quickly—opportunities like this in such a desirable location don’t last long!
2 bedroom apartment for sale in Cameron Close, Warley, Brentwood, CM14 — £280,000 • 2 bed • 1 bath • 707 ft²
2 bedroom apartment for sale in Forres House, Cameron Close, Warley, Brentwood, CM14 — £250,000 • 2 bed • 1 bath • 781 ft²
2 bedroom ground floor flat for sale in Rollason Way, Brentwood, Essex, CM14 — £295,000 • 2 bed • 2 bath • 668 ft²
2 bedroom apartment for sale in Gresham Road, Brentwood, CM14 — £250,000 • 2 bed • 1 bath • 679 ft²
3 bedroom flat for sale in Cameron Close, Warley, Brentwood, CM14 — £270,000 • 3 bed • 1 bath • 797 ft²
2 bedroom apartment for sale in Cameron Close, Warley, CM14 — £250,000 • 2 bed • 1 bath • 732 ft²






























