Chain-free four-bed home with large southerly garden and garage.
Chain-free detached four-bedroom family home
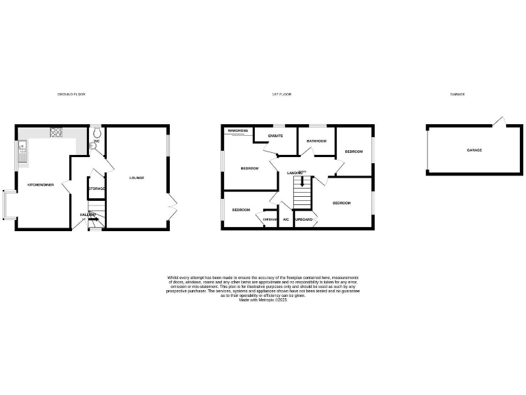
Set in a favoured Exmouth location, this four-bedroom detached home offers practical family living with a large southerly rear garden and generous driveway leading to a single garage. The lounge and substantial kitchen/dining room provide flexible communal space while a ground-floor cloakroom and first-floor en-suite add everyday convenience.
Well-insulated with double glazing and gas central heating, the property is chain-free and ready for a swift move. The plot is a real strength: a sunny, enclosed lawned garden with terrace, summerhouse and room for children's play or gardening projects. Parking for several cars plus garage add useful practicality.
Accommodation is compact overall (total approx. 968 sq ft) with some smaller bedroom sizes, so the layout suits families seeking efficient, comfortable living rather than very large rooms. The house is well-presented but offers scope for personalisation if you want to update finishes or reconfigure spaces. Local amenities, good primary schools and very low crime make this a calm suburban spot for raising children.
This home will interest growing families who value outdoor space, parking and a convenient location close to Exmouth facilities. Chain-free status helps simplify the purchase timetable for buyers needing a prompt completion.
4 bedroom detached house for sale in Featherbed Lane, Exmouth, Devon, EX8 — £475,000 • 4 bed • 1 bath • 1026 ft²
4 bedroom detached house for sale in Avondale Road, Exmouth, EX8 — £695,000 • 4 bed • 2 bath • 1054 ft²
4 bedroom detached house for sale in Sherwood Drive, Exmouth, EX8 4PX, EX8 — £375,000 • 4 bed • 1 bath • 855 ft²
4 bedroom detached house for sale in Ivydale, Exmouth, EX8 — £520,000 • 4 bed • 2 bath • 1677 ft²
4 bedroom detached house for sale in Deepdale, 51A Evergreen Close, Exmouth, EX8 — £600,000 • 4 bed • 2 bath • 1400 ft²
3 bedroom detached house for sale in Coleridge Close, Exmouth, Devon, EX8 — £325,000 • 3 bed • 2 bath • 561 ft²






















































































