**Standout Features:**
- Stunning views across the Moray Firth and North Coast
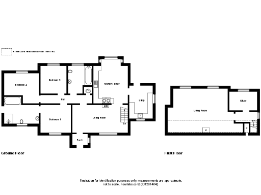
- Spacious 4 bedrooms, 2 reception rooms, and 2 bathrooms
- Modern, separate home office/studio
- Newly renovated with tasteful extensions
- Generous wrap-around gardens bursting with color
- Prime rural location yet close to Forres amenities
**Potential Downsides:**
- Broadband speeds are very slow
- Area classification indicates above-average council tax with high levels of local deprivation
Nestled in the idyllic Forres countryside, Wester Lawrenceton Cottage offers an enchanting blend of spacious living and breathtaking views, perfect for families or those seeking a peaceful retreat. This beautifully extended home features four generous bedrooms and two stylish bathrooms, along with two inviting reception areas and a unique home office or studio, ideal for creative pursuits.
Immaculately renovated, the property boasts charming features such as wooden doors and large picture windows that frame picturesque landscapes, ensuring spectacular sunset and northern lights views right from your living room. The expansive garden provides multiple outdoor seating areas and a vibrant backdrop, while off-street parking accommodates up to three vehicles.
While the slow broadband speeds may not cater to those who work from home frequently, the property's secluded setting offers tranquility and exceptional outdoor opportunities nearby, including beaches, parks, and woodland walks. Don’t miss out on this rare gem—opportunities like Wester Lawrenceton Cottage don’t stay on the market long!
4 bedroom detached house for sale in Craigmhor, 67 St Leonards Road, Forres, Moray, IV36 1DW, IV36 — £450,000 • 4 bed • 2 bath • 302 ft²
4 bedroom bungalow for sale in 4 Mary Croft, Rafford, Forres, Scotland, IV36 — £370,000 • 4 bed • 2 bath • 1801 ft²
4 bedroom detached house for sale in Carnoch, Caroline Street, Forres IV36 1AN, IV36 — £280,000 • 4 bed • 3 bath • 5293 ft²
5 bedroom detached house for sale in Little Buinach, Kellas, Elgin, IV30 8TS, IV30 — £1,050,000 • 5 bed • 4 bath • 6263 ft²
4 bedroom detached house for sale in Rosemuir, Kinloss, Forres, Morayshire, IV36 — £380,000 • 4 bed • 2 bath • 2071 ft²
5 bedroom detached bungalow for sale in Allheagar, Mannachie Road, Forres, Moray IV36 2JT, IV36 — £380,000 • 5 bed • 3 bath • 2583 ft²


































































































































































