Compact high-street shop with upper flat and goodwill option — needs refurbishment.
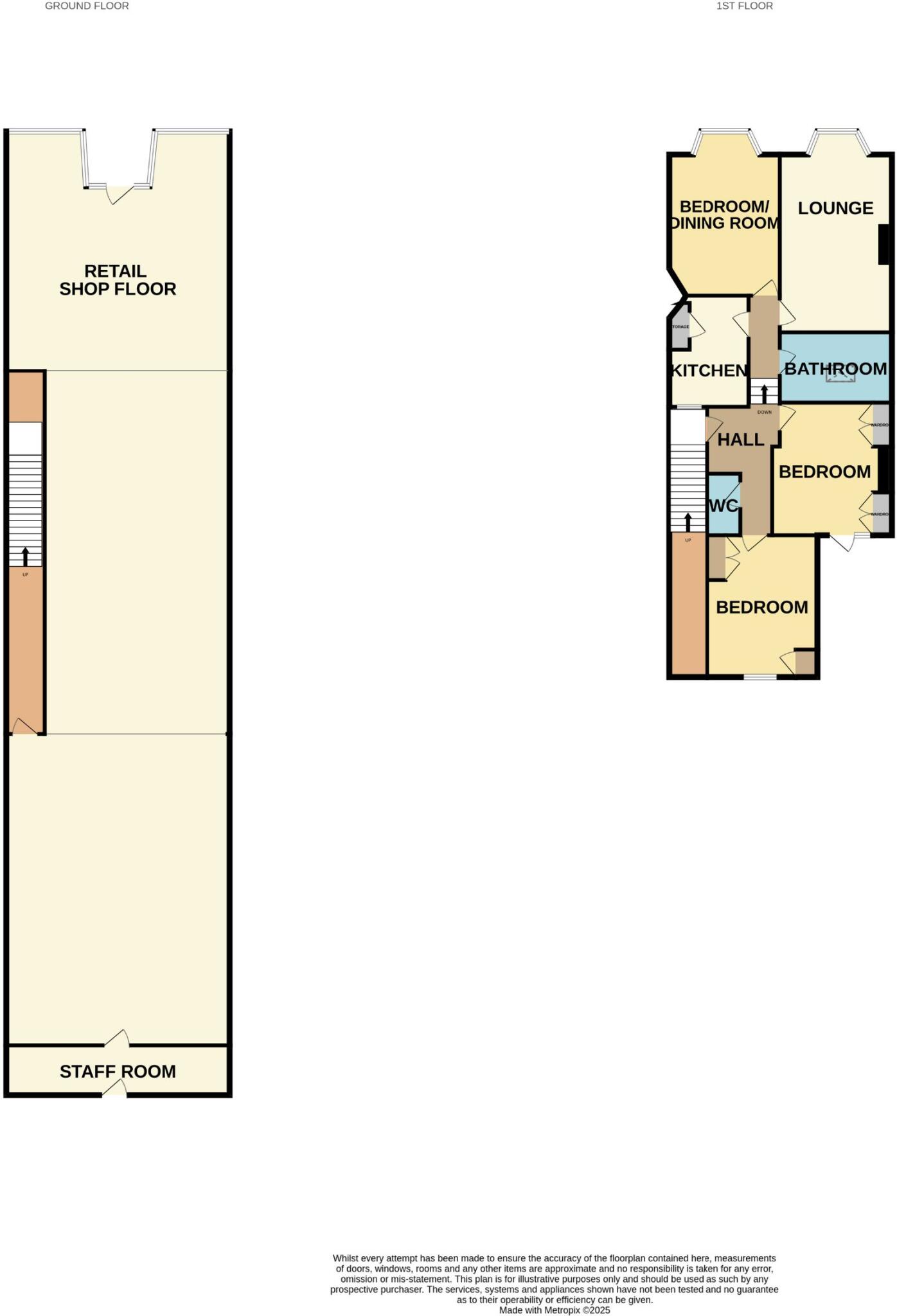
Freehold mid-terrace shop with first-floor apartment above
A freehold mid-terrace shop with first-floor residential accommodation, offered as an investment or owner-occupier opportunity on Clacton High Street. The ground floor provides a substantial retail area with rear access and prominent street frontage, while the upper floor is arranged as a self-contained apartment currently shown as one bedroom. There is an option to purchase the existing business goodwill and stock, enabling an immediate trading handover if required.
Practical features include double glazing (install date unknown), electric storage heating and a compact overall floor area of about 442 sq ft. Constructed in the early–mid 20th century, the building is typical period stock and will suit a buyer prepared to carry out cosmetic updating and systems checks. There is no garden or external private space.
Important negatives are clear: the property sits in a very deprived area with very high local crime levels, which can affect footfall and insurance costs. The building’s cavity walls are assumed to be uninsulated, the heating is electric storage-only, and interiors are dated and likely need modernisation. Buyers should budget for refurbishment, energy-efficiency upgrades and confirm details such as glazing dates, services and any planning constraints before purchase.
Overall this is a compact, straightforward freehold high-street unit that will suit a hands-on investor or small retailer seeking immediate presence on Clacton High Street, or a buyer looking to refurbish and re-let. The option to buy goodwill/stock offers extra flexibility but add-on costs and trading viability should be independently verified.
High street retail property for sale in High Street, Clacton-On-Sea, CO15 — £200,000 • 1 bed • 1 bath • 2053 ft²
Shop for sale in St. Osyth Road, Clacton-on-Sea, CO15 — £250,000 • 1 bed • 1 bath
High street retail property for sale in High Street, Clacton-On-Sea, Essex, CO15 — £109,995 • 1 bed • 1 bath • 635 ft²
Shop for sale in Rosemary Road, Clacton-on-Sea, CO15 — £87,000 • 1 bed • 1 bath
High street retail property for sale in Old Road, Clacton on Sea, CO15 — £280,000 • 3 bed • 1 bath • 392 ft²
Commercial property for sale in 159 Old Road, CO15 — £249,000 • 1 bed • 1 bath • 575 ft²














































