**Standout Features:**
- Exclusive penthouse in a private gated development
- 1500 sqft of professionally designed space
- Luxurious main bedroom with walk-in wardrobe and en-suite
- Spacious roof terrace with scenic views perfect for entertaining
- Modern kitchen (1 year old) with integrated appliances
- Aquabion water system for reduced limescale
- Ample storage including a large boarded loft
- No onward chain, facilitating a swift move
**Potential Concerns:**
- Leasehold property
- Service charge of £3,000 per annum
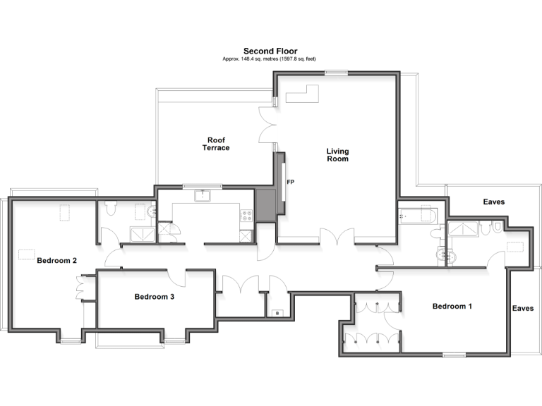
Nestled within an esteemed gated community, this stunning penthouse invites you to experience luxury living at its finest. Spanning over 1500 sqft, it features a beautifully designed interior, highlighted by a state-of-the-art kitchen and an expansive roof terrace that offers uninterrupted views over manicured communal gardens and the countryside—ideal for gatherings or serene relaxation. Enjoy the opulence of a master bedroom complete with a walk-in wardrobe and stylish en suite, alongside two spacious double bedrooms catering to family or guests.
With multiple storage options, including a large loft and eaves cupboards, convenience is at your fingertips. This property stands out not only for its exquisite design but also for its environmental features like the Aquabion water system, enhancing home comfort. Situated in a family-friendly neighborhood with good local schools, you'll find the perfect blend of community and privacy.
With no onward chain, this penthouse is poised for an expedient purchase. Seize the chance to make this exquisite space your own while it lasts!































































































