Two new family homes with gardens and parking in prime Reigate location.
- Planning permission granted for two 3‑storey detached houses (ref 24/02356/F)
- Each proposed home: ~2,200 sq ft, 5 beds, 3 baths, 4 receptions
- Large level plot ~0.376 acre (very large) with private driveways
- Short walk to primary/secondary schools, shops and town centre
- Existing building derelict; demolition required or already consented
- Significant build, landscaping and professional costs expected
- Planning drawings illustrative; buyers must verify consents and sizes
- Council tax high; local crime and deprivation levels average
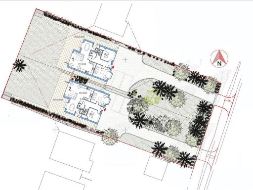
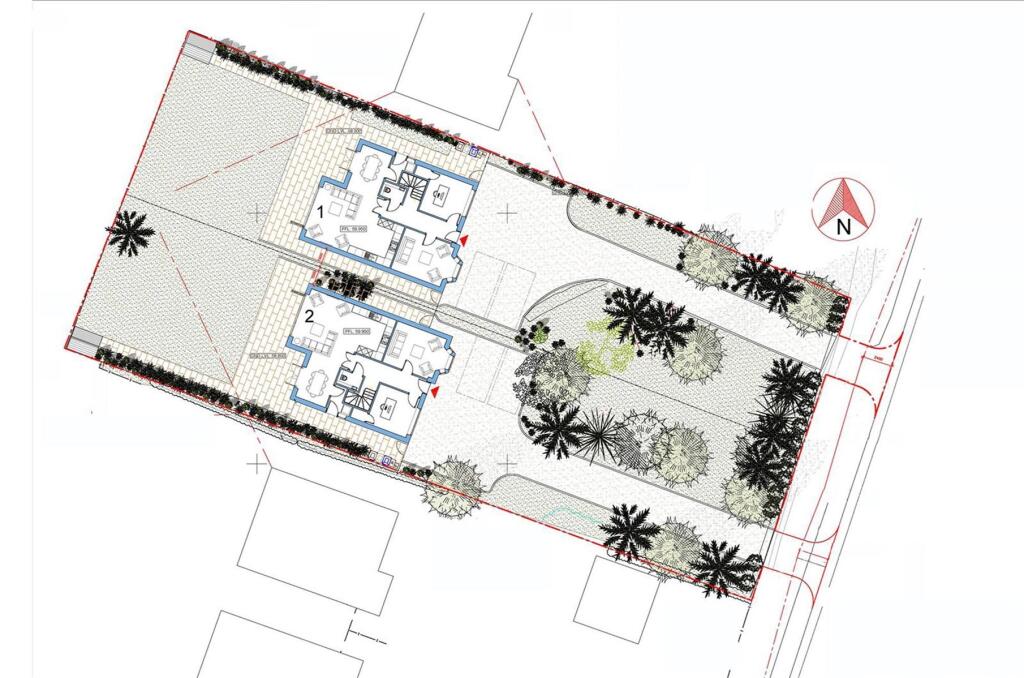
This large level plot in Reigate offers a rare developer opportunity: planning permission (ref 24/02356/F) has been granted to demolish the existing mid‑20th‑century house and garage and build two three‑storey detached homes of about 2,200 sq ft each. Each proposed house would provide five bedrooms, three bathrooms, four reception rooms, private driveways, gardens and parking — ideal for families or buyers seeking spacious, modern living close to town.
The location is a strong selling point: a short walk to primary and secondary schools (including top‑ranked independent options), local shops, Priory Park and Reigate town centre with good rail and road links to London and Gatwick. The level plot of approximately 0.376 acres provides generous rear gardens and room for landscaping and parking for multiple cars.
The existing property is derelict and described as a fixer‑upper; demolition is included in the granted consent. Buyers should note the house currently has a single bathroom and will require demolition or extensive works if not building to the approved scheme. Planning drawings are illustrative only — prospective purchasers must verify all dimensions, services and consents with the council and their solicitor.
Guide price reflects the redevelopment potential but also practical costs: demolition, build costs, landscaping, and professional fees will be significant. Council tax indications are high for the area. This plot suits developers or experienced self‑builders seeking to deliver two family homes in a desirable Reigate neighbourhood with planning already in place.
4 bedroom detached house for sale in Old Pottery Close, Reigate, RH2 — £1,000,000 • 4 bed • 2 bath • 1923 ft²
Plot for sale in Radstock Way, Redhill, RH1 — £550,000 • 3 bed • 1 bath • 905 ft²
3 bedroom semi-detached house for sale in Rushetts Road, Reigate, Surrey, RH2 — £465,000 • 3 bed • 1 bath • 692 ft²
3 bedroom semi-detached house for sale in Parkgate Road, Reigate, Surrey, RH2 — £650,000 • 3 bed • 1 bath • 1586 ft²
4 bedroom link detached house for sale in Laglands Close, Reigate, Surrey, RH2 — £1,195,000 • 4 bed • 2 bath • 3150 ft²
3 bedroom semi-detached house for sale in Ashdown Road, Reigate, Surrey, RH2 — £475,000 • 3 bed • 1 bath • 883 ft²














































